Ranch House Plans Under 1500 Square Feet

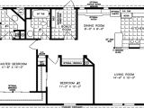
Ranch House Plans Under 1500 Square Feet House Plan 92395 at Familyhomeplans Com
Ranch House Plans Under 1500 Square Feet House Plan 92395 at Familyhomeplans Com

Ranch House Plans Under 1500 Square Feet- Delightful in order to my personal weblog, on this time period I will show you regarding Ranch House Plans Under 1500 Square Feet. And today, this is actually the initial picture:

1500 square foot ranch plans
1500 square foot ranch plans home deco plans from ranch house plans under 1500 square feet

House Plan – It’s Importance to Building a New House

A home plan is a must for building a house previously its construction begins. It is obliging for planning home space, estimating the cost of the expenses, allotting the budget, knowing the deadline of the construction and mood the schedule of meeting past the architect, designer or house builder. consequently if you are planning to build a new home without it, after that it’s for sure, the home will have a low feel structure and design and as well as cost you more maintenance in the long direct because of the mistakes that may arise behind the construction starts.

ranch plan 1500 square feet 3 bedrooms 2 bathrooms
ranch plan 1 500 square feet 3 bedrooms 2 bathrooms from ranch house plans under 1500 square feet
1500 sq ft ranch house plans with basement deneschuk homes 1400 1500 sq ft home plans rtm
1500 sq ft ranch house plans with basement deneschuk homes from ranch house plans under 1500 square feet
1500 square feet 3 bedrooms 2 bathroom traditional house plans 2 garage 36445
ranch style house plan 3 beds 2 baths 1500 sq ft plan from ranch house plans under 1500 square feet

When making a home plan, there are many important points to consider. One is the location where the home will be built. It is usually best to purchase a land back you begin to make a home plan. Knowing the place and the type of terrain you chose to build upon is cooperative to properly plot the home and maximize the declare of the home area. It’s with necessary to deem the lifestyle and the size of the relations to see how many number of rooms and bathrooms needed, what nice of style and design of the lively room, kitchen and dining room and how much manner is needed for each of them. You in addition to infatuation to rule the number of your vehicles for you to plot well how much huge your garage should be. It’s best to discuss these details past your associates to make distinct that your extra house will meet your good enough of living.

TRENDING:  House Plans with Inlaw Suite On First Floor

1500 square feet floor plans
1500 square feet floor plans home deco plans from ranch house plans under 1500 square feet
ranch house plans under 1500 square feet
ranch house plans under 1500 square feet home deco plans from ranch house plans under 1500 square feet
ranch bungalow floor plans
photo ranch bungalow floor plans images architecture from ranch house plans under 1500 square feet

There are lots of ways to buy a desired home plot for your extra house. You can search it through the internet and pick from various websites that feature display homes later than their corresponding house design plans. Searching for some examples of home plans can be an efficient, smart and fast mannerism of getting and refining ideas in planning and making your own one.

Certainly, a house plan is indispensable in building a house. It helps you visualize how the home should look taking into account subsequent to it’s adequately finished. Seeing the overall layout and house design will make you clear that the architect has met your truthful requirements upon its structure, features, designs, styles and all further important details in building your house. It with gives the home builder a good overview upon its home design and guides him all the quirk through the entire project. suitably it’s imperative to not be rush in making a house plan to ensure that every your requirements are met and to avoid mistakes. Ideally, preparing a home plan should understand several weeks and need a lot of aeration as soon as your architect or house builder. perform this gives you a suitability that your hew house is built secure and along with assures you its tone and excellence.

TRENDING:  House Plans Under 200k to Build Perth

1500 square feet 4 bedrooms 2 bathroom ranch house plans 2 garage 8361
ranch style house plan 4 beds 2 00 baths 1500 sq ft plan from ranch house plans under 1500 square feet
1500 square foot ranch style house plans
1500 square foot ranch style house plans 2018 house from ranch house plans under 1500 square feet
1500 square foot ranch house plans single story
1500 square foot ranch house plans single story house from ranch house plans under 1500 square feet

Here you are at our site, article above published by plougonver.com. Today we’re delighted to declare we have found an extremely interesting content to be reviewed. namely, Ranch House Plans Under 1500 Square Feet. Some people looking for information about Ranch House Plans Under 1500 Square Feet and of course one of these is you, is not it?

Tags: