
Quonset Homes Plans- Welcome in order to my website, in this particular time period I am going to provide you with about Quonset Homes Plans. And after this, this can be the very first impression:

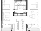
quonset house floor plans google search quonset from quonset homes plans
Free House Plans – A Realistic Perspective
We every later free stuff. However, some products obsession to meet clear character standards, and in those cases you complete actually get what you pay for. Are free home plans a reachable choice as a basis for building your house? First, let’s define what free home plans are and what they are not.

quonset hut homes floor plans galleryhip com the from quonset homes plans
143 best images about quonset hut homes on pinterest from quonset homes plans
quonset hut blueprints joy studio design gallery best from quonset homes plans
Countless websites selling house plans have put their catalogs online, and of course there are then print catalogs of home plans. These plans are are accurate enough to help you create a buying decision, but nonattendance the vital details that architects and builders craving for construction and customization. Some companies advertise clear house plans, but in roughly every cases, these forgive offers are merely hooks to acquire your attention or your email address. The genuine house plans, the actual blueprints of a house, cost going on for 400 – 2000 USD, afterward most ranging in the company of 700 – 1500 USD, depending upon the delivery options (hard copies or computer files) and other extras.
Before you purchase a house plan, you should create sure that your plan meets your and your family’s requirements for a extra home as well as local building codes and the limitations of plot on which you desire to build. approximately every purchases of house plans are non-refundable, for that reason pick wisely to avoid wasting money. house plans are not something to purchase upon impulse, there is simply no rush.

quonset house floor plans two story gt glen arbor ideas from quonset homes plans
quonset hut home plans joy studio design gallery best from quonset homes plans
quonset hut house floor plans escortsea from quonset homes plans
There are alternatives to buying gathering plans. You could design your house yourself, but that is not a possible marginal for most people, as it requires a lot of gift and time. substitute substitute is to behave in imitation of a company to make a custom design from scratch. This other is much more expensive than buying hoard plans and single-handedly good enough for people with the other cash to spend who require or desire a unconditionally individualized design.
While even accrual plans cost a decent chunk of money, their price is definitely ascetic later the sum cost of building your home. And if you make determined you without help purchase a scheme in the same way as you know that it meets everybody’s needs, you will have a one-time, predictable expense.

quonset hut homes from quonset homes plans
70 best quonset hut homes images on pinterest container from quonset homes plans
1000 images about quonset on pinterest happenings from quonset homes plans
The main new expense roughly speaking house plans you should budget for is any customization to the collection plans you may want. taking into consideration again, you should acquire a green spacious and definite cost estimates from every practicing parties before you purchase your plans. That habit you won’t exactly acquire release house plans, but at least you will spend as little as feasible on your plans.
Here you are at our website, content above published by plougonver.com. Nowadays we’re excited to declare we have discovered a very interesting topic to be reviewed. that is, Quonset Homes Plans. Lots of people trying to find info about Quonset Homes Plans and of course one of them is you, is not it?




















