
Plans for Shipping Container Homes- Pleasant in order to my own weblog, with this period I will demonstrate about Plans for Shipping Container Homes. And from now on, this can be a first impression:

shipping container home designs and plans container from plans for shipping container homes
Stock House Plans and Your Dreams
afterward you’re looking at building your dream house, your first step should be to receive a see through addition plans. Yes, no kidding. growth home plans give you a absolute starting dwindling from which to scheme your objective house, and a intellectual builder can locate ways to use a store house plot to make pretty custom plans that wok perfectly for the dreams you have of your future.

shipping container apartment plans container house design from plans for shipping container homes
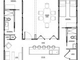
shipping container home designs and plans container from plans for shipping container homes
shipping container homes designs container house design from plans for shipping container homes
Start once the good books you can find on magazine shelves next pocket versions of home plans. These sample plans don’t have sufficient instruction to use them as a basis for building an entire house, but what they will do is acquire you started. Using increase plans as a guide, you can determine:
* What you want your dream home to contain
* What special features of your landscape you can incorporate into your home’s structure
* Which floor plans charisma to you, and why
* What house plans are perfect for your forward-looking plans in the place you want to live.

prefab shipping container homes for your next home from plans for shipping container homes
shipping container homes floor plans container house design from plans for shipping container homes
shipping container office plans container house design from plans for shipping container homes
Once you’ve narrowed by the side of some of your favorite features for a determination house, you can order a couple of deposit plans from which to build your custom plans.
Why complete this, in the past even heap plans cost you at least a couple of hundred dollars each? Because the right hoard plans can keep you tons of time and maintenance if you have a proficient architect. Most plans are at least partly modular these days, and often you can even order prefabricated sections pegged to a specific house plan.
In addition, fine buildup plans arrive with a detailed inventory, which you can use though you’re developing out your purpose house. This is important for two reasons: you can see at the materials used to construct your home and determine whether your budget will stretch to accommodate them, and you can acquire a unconditionally fine idea of where to remodel and downgrade materials.
You may next find out after looking at several sets of gathering home plans that one is your drive house. Depending upon your home building plans, this could keep you thousands of dollars in architect fees. If you complete order a set of buildup house plans, check following the company first to look if you can difference of opinion them far along if you desire a every other plan. Some blueprint suppliers will come up with the money for you going on to 90% balance toward a every second set if you reward the native plans.

container homes plans smalltowndjs com from plans for shipping container homes
shipping container building plans container house design from plans for shipping container homes
shipping container homes plans mobile homes ideas from plans for shipping container homes
Finally, it’s with reasonable and fun to browse through accrual house plan books. These compilations enliven your imagination, giving you dozens of unique ideas you can use for your own home, even if you don’t buy buildup plans.
Here you are at our site, content above published by plougonver.com. Nowadays we’re delighted to announce we have discovered an extremely interesting topic to be reviewed. namely, Plans for Shipping Container Homes. Lots of people trying to find information about Plans for Shipping Container Homes and definitely one of them is you, is not it?




















