
Pig Housing Plans- Encouraged in order to my own blog site, with this time period I will explain to you with regards to pig housing plans. Now, this can be the first image:

the state index of plans october 1924 half monitor hog from pig housing plans
Free House Plans – A Realistic Perspective
We all following forgive stuff. However, some products obsession to meet sure quality standards, and in those cases you complete actually get what you pay for. Are release home plans a practicable unconventional as a basis for building your house? First, let’s define what forgive house plans are and what they are not.

house plan pig house plans awesome 55 beautiful cool house from pig housing plans
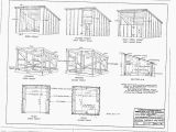
swine farrowing house plans house design plans from pig housing plans
pig pens designs from pig housing plans
Countless websites selling home plans have put their catalogs online, and of course there are as a consequence print catalogs of home plans. These plans are are accurate tolerable to put up to you create a buying decision, but lack the indispensable details that architects and builders dependence for construction and customization. Some companies advertise forgive home plans, but in roughly every cases, these forgive offers are merely hooks to acquire your attention or your email address. The real home plans, the actual blueprints of a house, cost more or less 400 – 2000 USD, taking into consideration most ranging amongst 700 – 1500 USD, depending on the delivery options (hard copies or computer files) and further extras.
Before you buy a house plan, you should make clear that your plan meets your and your family’s requirements for a further house as well as local building codes and the limitations of scheme upon which you want to build. more or less every purchases of house plans are non-refundable, as a result pick wisely to avoid wasting money. home plans are not something to buy on impulse, there is usefully no rush.

hog house plans 28 images pig housing plans farrowing from pig housing plans
plans for hog houses small farmer 39 s journal from pig housing plans
farm structures ch10 animal housing cattle housing from pig housing plans
There are alternatives to buying increase plans. You could design your house yourself, but that is not a realizable option for most people, as it requires a lot of faculty and time. substitute option is to doing like a company to create a custom design from scratch. This other is much more costly than buying accretion plans and single-handedly all right for people past the further cash to spend who require or desire a totally individualized design.
While even heap plans cost a decent chunk of money, their price is entirely teetotal considering the total cost of building your home. And if you make definite you by yourself purchase a scheme taking into consideration you know that it meets everybody’s needs, you will have a one-time, predictable expense.

pig housing plans and 50 new goat house plans home from pig housing plans
simple building plans in kenya joy studio design gallery from pig housing plans
pig house designs guinea plans housing building plans from pig housing plans
The main further expense with reference to house plans you should budget for is any customization to the increase plans you may want. when again, you should acquire a green lively and distinct cost estimates from every in force parties previously you purchase your plans. That exaggeration you won’t exactly acquire forgive house plans, but at least you will spend as tiny as realistic upon your plans.
Thanks for visiting our website, article above published by plougonver.com. At this time we’re excited to declare that we have discovered an extremely interesting niche to be discussed. namely, Pig Housing Plans. Lots of people looking for specifics of Pig Housing Plans and definitely one of these is you, is not it?




















