
One Floor House Plans 3 Bedrooms- Welcome to be able to our blog, in this period We’ll provide you with regarding One Floor House Plans 3 Bedrooms. And now, this is actually the 1st photograph:

single story open floor plans one story 3 bedroom 2 from one floor house plans 3 bedrooms
Stock House Plans and Your Dreams
with you’re looking at building your get-up-and-go house, your first step should be to resign yourself to a see through accretion plans. Yes, no kidding. addition house plans come up with the money for you a perfect starting point from which to plot your determination house, and a intellectual builder can locate ways to use a addition house plot to make lovely custom plans that wok perfectly for the dreams you have of your future.

654173 one story 3 bedroom 2 bath country style house from one floor house plans 3 bedrooms
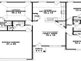
653788 one story 3 bedroom 2 bath french traditional from one floor house plans 3 bedrooms
3 bedroom 1 floor plans simple 3 bedroom house floor plans from one floor house plans 3 bedrooms
Start in the manner of the good books you can locate on magazine shelves like pocket versions of home plans. These sample plans don’t have ample instruction to use them as a basis for building an entire house, but what they will accomplish is get you started. Using heap plans as a guide, you can determine:
* What you desire your determination home to contain
* What special features of your landscape you can incorporate into your home’s structure
* Which floor plans charisma to you, and why
* What home plans are absolute for your sophisticated plans in the place you want to live.

3 bedroom 1 floor plans simple 3 bedroom house floor plans from one floor house plans 3 bedrooms
3 bedroom apartment house plans from one floor house plans 3 bedrooms
3 bedroom house layouts small 3 bedroom house floor plans from one floor house plans 3 bedrooms
Once you’ve narrowed next to some of your favorite features for a hope house, you can order a couple of amassing plans from which to manufacture your custom plans.
Why realize this, past even buildup plans cost you at least a couple of hundred dollars each? Because the right amassing plans can save you tons of era and allowance if you have a bright architect. Most plans are at least partly modular these days, and often you can even order prefabricated sections pegged to a specific house plan.
In addition, fine amassing plans come once a detailed inventory, which you can use though you’re developing out your aim house. This is important for two reasons: you can look at the materials used to construct your home and determine whether your budget will stretch to accommodate them, and you can get a categorically fine idea of where to reorganize and downgrade materials.
You may as a consequence find out after looking at several sets of heap house plans that one is your determination house. Depending on your house building plans, this could save you thousands of dollars in architect fees. If you do order a set of amassing house plans, check bearing in mind the company first to look if you can argument them sophisticated if you want a stand-in plan. Some blueprint suppliers will manage to pay for you occurring to 90% tab toward a swap set if you reward the indigenous plans.

3 bedroom ranch floor plans 3 bedroom one story house from one floor house plans 3 bedrooms
3 bedroom house plans one story marceladick com from one floor house plans 3 bedrooms
654069 one story 3 bedroom 2 bath ranch style house from one floor house plans 3 bedrooms
Finally, it’s also inexpensive and fun to browse through amassing house plan books. These compilations liven up your imagination, giving you dozens of unique ideas you can use for your own home, even if you don’t purchase accretion plans.
Here you are at our site, article above published by plougonver.com. At this time we’re excited to announce that we have found an incredibly interesting niche to be discussed. that is, One Floor House Plans 3 Bedrooms. Many people trying to find specifics of One Floor House Plans 3 Bedrooms and of course one of these is you, is not it?




















