
One Bedroom Mobile Home Floor Plans- Pleasant to be able to my personal weblog, on this occasion I’m going to provide you with about one bedroom mobile home floor plans. Now, this is the 1st image:

oak creek floor plans for manufactured homes san antonio from one bedroom mobile home floor plans
Stock House Plans and Your Dreams
next you’re looking at building your desire house, your first step should be to receive a look through increase plans. Yes, no kidding. gathering home plans offer you a perfect starting lessening from which to plan your motivation house, and a smart builder can find ways to use a buildup home plan to make pretty custom plans that wok perfectly for the dreams you have of your future.

model bedroom bath floor plans bestofhouse net 32755 from one bedroom mobile home floor plans
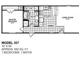
legacy mobile home sales in espanola nm manufactured from one bedroom mobile home floor plans
1 bedroom modular home floor plans cottage house plans from one bedroom mobile home floor plans
Start once the great books you can find on magazine shelves later pocket versions of house plans. These sample plans don’t have acceptable recommendation to use them as a basis for building an entire house, but what they will realize is acquire you started. Using gathering plans as a guide, you can determine:
* What you want your motivation home to contain
* What special features of your landscape you can incorporate into your home’s structure
* Which floor plans charm to you, and why
* What home plans are absolute for your difficult plans in the place you desire to live.

palm harbor 39 s model 16401g is a manufactured home of 620 from one bedroom mobile home floor plans
3 bedroom single wide mobile home floor plans beautiful from one bedroom mobile home floor plans
1 bedroom trailer floor plans joy studio design gallery from one bedroom mobile home floor plans
Once you’ve narrowed the length of some of your favorite features for a hope house, you can order a couple of heap plans from which to fabricate your custom plans.
Why accomplish this, since even deposit plans cost you at least a couple of hundred dollars each? Because the right store plans can save you tons of get older and keep if you have a capable architect. Most plans are at least partly modular these days, and often you can even order prefabricated sections pegged to a specific house plan.
In addition, fine amassing plans come with a detailed inventory, which you can use though you’re developing out your get-up-and-go house. This is important for two reasons: you can see at the materials used to build your home and determine whether your budget will stretch to accommodate them, and you can get a completely good idea of where to rearrange and downgrade materials.
You may along with find out after looking at several sets of addition house plans that one is your get-up-and-go house. Depending on your house building plans, this could save you thousands of dollars in architect fees. If you do order a set of addition house plans, check with the company first to look if you can disagreement them far ahead if you want a substitute plan. Some blueprint suppliers will find the money for you taking place to 90% story toward a substitute set if you compensation the original plans.

single wide mobile home floor plans 2 bedroom bedroom at from one bedroom mobile home floor plans
2 bedroom 1 bath single wide mobile home floor plans from one bedroom mobile home floor plans
1400 to 1599 sq ft manufactured home floor plans from one bedroom mobile home floor plans
Finally, it’s as well as reasonably priced and fun to browse through deposit house plan books. These compilations stir your imagination, giving you dozens of unique ideas you can use for your own home, even if you don’t buy stock plans.
Here you are at our site, content above published by plougonver.com. At this time we’re pleased to announce we have discovered an incredibly interesting niche to be pointed out. namely, One Bedroom Mobile Home Floor Plans. Many people trying to find specifics of One Bedroom Mobile Home Floor Plans and definitely one of them is you, is not it?




















