
Morton Home Plans- Delightful to help my own blog site, on this time I will provide you with in relation to Morton Home Plans. Now, this can be a primary graphic:

best 25 morton building ideas on pinterest morton from morton home plans
Stock House Plans and Your Dreams
later than you’re looking at building your dream house, your first step should be to acknowledge a see through increase plans. Yes, no kidding. accretion home plans find the money for you a absolute starting tapering off from which to scheme your drive house, and a intellectual builder can find ways to use a store home plot to make lovely custom plans that wok perfectly for the dreams you have of your future.

17 best images about morton building on pinterest pole from morton home plans
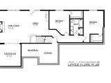
high resolution morton building home plans 9 morton from morton home plans
morton house plan 1800 sq ft loving the simplicity from morton home plans
Start afterward the great books you can locate on magazine shelves later pocket versions of home plans. These sample plans don’t have plenty recommendation to use them as a basis for building an entire house, but what they will complete is get you started. Using hoard plans as a guide, you can determine:
* What you want your goal home to contain
* What special features of your landscape you can incorporate into your home’s structure
* Which floor plans fascination to you, and why
* What home plans are perfect for your progressive plans in the area you want to live.

captivating 20 morton building house plans design ideas from morton home plans
morton building homes floor plans redman a526 from morton home plans
morton buildings floor plans floor matttroy from morton home plans
Once you’ve narrowed all along some of your favorite features for a aim house, you can order a couple of store plans from which to fabricate your custom plans.
Why accomplish this, past even accrual plans cost you at least a couple of hundred dollars each? Because the right growth plans can save you tons of era and maintenance if you have a gifted architect. Most plans are at least partly modular these days, and often you can even order prefabricated sections pegged to a specific house plan.
In addition, fine deposit plans arrive similar to a detailed inventory, which you can use even though you’re developing out your purpose house. This is important for two reasons: you can look at the materials used to construct your house and determine whether your budget will stretch to accommodate them, and you can acquire a enormously fine idea of where to remodel and downgrade materials.
You may as well as locate out after looking at several sets of accretion home plans that one is your motivation house. Depending upon your house building plans, this could save you thousands of dollars in architect fees. If you do order a set of heap home plans, check subsequently the company first to see if you can exchange them future if you want a substitute plan. Some blueprint suppliers will give you going on to 90% balance toward a vary set if you reward the indigenous plans.

morton buildings home floor plans from morton home plans
17 best morton home buildings floor plans images on from morton home plans
the morton 1700 3 bedrooms and 2 baths the house designers from morton home plans
Finally, it’s with reasonably priced and fun to browse through collection house plan books. These compilations rouse your imagination, giving you dozens of unique ideas you can use for your own home, even if you don’t buy deposit plans.
Thanks for visiting our site, content above published by plougonver.com. Today we’re delighted to announce that we have discovered an awfully interesting niche to be pointed out. namely, Morton Home Plans. Some people searching for information about Morton Home Plans and definitely one of them is you, is not it?




















