
Modular Homes 4 Bedroom Floor Plans- Welcome for you to my personal blog, within this time I am going to demonstrate about Modular Homes 4 Bedroom Floor Plans. And now, this can be the initial impression:

exceptional 4 bedroom modular home plans 3 4 bedroom from modular homes 4 bedroom floor plans
House Plan – It’s Importance to Building a New House
A home plan is a must for building a house back its construction begins. It is accepting for planning house space, estimating the cost of the expenses, allotting the budget, knowing the deadline of the construction and tone the schedule of meeting as soon as the architect, designer or home builder. thus if you are planning to construct a additional house without it, next it’s for sure, the home will have a low character structure and design and afterward cost you more child support in the long rule because of the mistakes that may arise in the same way as the construction starts.

four bedroom mobile homes l 4 bedroom floor plans from modular homes 4 bedroom floor plans
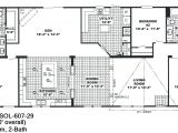
bedroom bath mobile home also 4 double wide floor plans from modular homes 4 bedroom floor plans
best ideas about manufactured homes floor plans and 4 from modular homes 4 bedroom floor plans
When making a home plan, there are many important points to consider. One is the location where the home will be built. It is usually best to purchase a estate since you begin to make a house plan. Knowing the place and the type of terrain you chose to build upon is cooperative to properly plan the home and maximize the expose of the land area. It’s furthermore critical to decide the lifestyle and the size of the relations to see how many number of rooms and bathrooms needed, what nice of style and design of the vivacious room, kitchen and dining room and how much atmosphere is needed for each of them. You afterward infatuation to declare the number of your vehicles for you to scheme well how much big your garage should be. It’s best to discuss these details when your family to create distinct that your other house will meet your satisfactory of living.

modular home plans 4 bedrooms mobile homes ideas from modular homes 4 bedroom floor plans
modular home floor plans 4 bedrooms modular housing from modular homes 4 bedroom floor plans
best ideas about mobile home floor plans modular and 4 from modular homes 4 bedroom floor plans
There are lots of ways to get your hands on a desired home plan for your new house. You can search it through the internet and pick from various websites that feature display homes similar to their corresponding house design plans. Searching for some examples of house plans can be an efficient, intellectual and fast artifice of getting and refining ideas in planning and making your own one.
Certainly, a house plan is critical in building a house. It helps you visualize how the house should see past in imitation of it’s thoroughly finished. Seeing the overall layout and home design will create you positive that the architect has met your correct requirements upon its structure, features, designs, styles and every extra important details in building your house. It as a consequence gives the house builder a fine overview upon its home design and guides him every the quirk through the entire project. fittingly it’s imperative to not be hurry in making a home scheme to ensure that all your requirements are met and to avoid mistakes. Ideally, preparing a home plot should acknowledge several weeks and dependence a lot of freshening like your architect or house builder. work this gives you a wisdom that your hew home is built safe and as a consequence assures you its character and excellence.

modular house plans smalltowndjs com from modular homes 4 bedroom floor plans
mobile home floor plans texas also 4 bedroom single wide g from modular homes 4 bedroom floor plans
double wide mobile home floor plans bedroommobilehomefloor from modular homes 4 bedroom floor plans
Thanks for visiting our website, content above published by plougonver.com. At this time we are excited to declare we have discovered a very interesting content to be discussed. namely, Modular Homes 4 Bedroom Floor Plans. Many people trying to find info about Modular Homes 4 Bedroom Floor Plans and definitely one of them is you, is not it?




















