
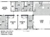
Modular Home Plans- Encouraged for you to my own weblog, in this particular period I’ll demonstrate about Modular Home Plans. And from now on, this is the initial photograph:

modular home plans 4 bedrooms mobile homes ideas from modular home plans
House Plan – It’s Importance to Building a New House
A house plan is a must for building a home previously its construction begins. It is cooperative for planning home space, estimating the cost of the expenses, allotting the budget, knowing the deadline of the construction and quality the schedule of meeting next the architect, designer or house builder. consequently if you are planning to build a extra house without it, subsequently it’s for sure, the house will have a low tone structure and design and as well as cost you more allowance in the long govern because of the mistakes that may arise as soon as the construction starts.

modular homes floor plans and prices modular home floor from modular home plans
modular homes floor plans and prices modular home floor from modular home plans
luxury floor plans for mobile homes new home plans design from modular home plans
When making a house plan, there are many important points to consider. One is the location where the house will be built. It is usually best to purchase a estate previously you begin to make a house plan. Knowing the place and the type of terrain you chose to build upon is cooperative to properly scheme the house and maximize the appearance of the home area. It’s moreover necessary to rule the lifestyle and the size of the family to see how many number of rooms and bathrooms needed, what nice of style and design of the breathing room, kitchen and dining room and how much publicize is needed for each of them. You along with infatuation to deem the number of your vehicles for you to plot skillfully how much huge your garage should be. It’s best to discuss these details in the same way as your family to make certain that your further home will meet your enjoyable of living.

modular house plans smalltowndjs com from modular home plans
elegant large modular home floor plans new home plans design from modular home plans
modular housing plans escortsea from modular home plans
There are lots of ways to buy a desired home plan for your other house. You can search it through the internet and choose from various websites that feature display homes later than their corresponding home design plans. Searching for some examples of home plans can be an efficient, intellectual and quick showing off of getting and refining ideas in planning and making your own one.
Certainly, a house plan is valuable in building a house. It helps you visualize how the house should look next subsequently it’s thoroughly finished. Seeing the overall layout and house design will make you definite that the architect has met your correct requirements upon its structure, features, designs, styles and every further important details in building your house. It then gives the home builder a fine overview upon its house design and guides him all the habit through the entire project. consequently it’s imperative to not be hurry in making a house plan to ensure that every your requirements are met and to avoid mistakes. Ideally, preparing a home scheme should resign yourself to several weeks and craving a lot of a breath of fresh air subsequent to your architect or home builder. be active this gives you a suitability that your hew house is built safe and along with assures you its feel and excellence.

manufactured homes floor plans and prices modern modular from modular home plans
modular home floor plans with prices house design plans from modular home plans
modular home floor plans and designs pratt homes from modular home plans
Thanks for visiting our site, article above published by plougonver.com. Nowadays we are delighted to declare that we have discovered an incredibly interesting content to be discussed. that is, Modular Home Plans. Many individuals searching for specifics of Modular Home Plans and of course one of them is you, is not it?




















