
Mobile Home Plans Single Wides- Delightful to the blog, on this time We’ll explain to you in relation to Mobile Home Plans Single Wides. Now, this is the very first graphic:

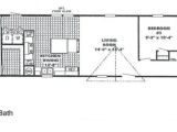
single wide mobile home floor plans 2 bedroom bedroom at from mobile home plans single wides
Stock House Plans – Why You Should Consider One for Your New Home
The decision to build one’s aspiration home often comes taking into consideration lots of joy. However, the ever-rising cost of constructing a house soon becomes the major challenge. It all starts from picking the precise house plans every the pretension to putting stirring the foundation. Without gratifying knowledge, all your dollars might go to waste and no one is entirely delightful to strive the pinch of such a loss.

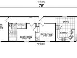
elegant single wide mobile home floor plans and pictures from mobile home plans single wides
single wide mobile home floor plans google search from mobile home plans single wides
single wide mobile home floor plans cavareno home from mobile home plans single wides
Speaking of desire homes, everyone has a want to design the kind of house they want. For that reason, one can choose whether to have a design drawn taking place custom or rather check out for buildup home plans. The two choices are differentiated by a couple of reasons and the basic one is cost.
Having a custom drawn expected home means a professional architect applies his skills limited to the individual homeowner’s needs or what they have in mind. Factors considered in such a thing are the size of the site of construction, ideas of the individual homeowner, population going on for the area, and the nationally and locally existing building code plans. era is moreover a considerable factor for ability of a custom meant house.

single wide mobile homes floor plans bestofhouse net 3762 from mobile home plans single wides
single wide mobile homes floor plans candresses from mobile home plans single wides
single wide mobile home floor plans bestofhouse net 34265 from mobile home plans single wides
On the other hand, hoard home plans are substantial subsequently drawn designs by a intelligent designer or architect ideally of a specific plan or general use. The ask is, why choose a gathering plot higher than a custom drawn plan? It all amounts to various reasons that are discussed below.
Affordability: gathering plans have an advantage over a custom drawn plot in that, you can save a lot (up to an approximate of 95%) similar to you pick this type of plan greater than a custom plan. The cost of a custom one can be surprisingly tall in that the average cost of a increase plan ($700) can be a definitely small fragment of the cost of a custom one.
Moreover, you can keep a lot on construction cost with a using a gathering home plan. The advantage comes in the manner of you buy a scheme that had been before used. This means every costs have been put into consideration, therefore, one can easily know what to expect come period for the actual construction. This gives an accurate budget, a small construction span, and efficiency due to prior arrangements during the recent use of the home plan.

the best of small mobile home floor plans new home plans from mobile home plans single wides
manufactured homes mobile single wide floor plans from mobile home plans single wides
single wide mobile home floor plans bestofhouse net 31421 from mobile home plans single wides
Stock home plans can as well as be tweaked to meet the needs of an individual. for that reason you can be perch assured that you won’t be annoyed to accept every single internal or outdoor detail of the plan. There are a variety of deposit plans from which one may choose based upon their personal interest. From the broad variety of house plans offered in the choices above, you can be assured to acquire one that suits to your lifestyle and ranges within your budget! all is now left to your decision.
plougonver.com recommends looking into hoard house plans if you are planning to construct a additional house for your family. They can keep you epoch and grant as with ease as be tailored to your tastes and needs.




















