
Mobile Home House Plans- Delightful to my personal weblog, in this time I will teach you in relation to mobile home house plans. And now, this can be a 1st photograph:

modern mobile home floor plans mobile homes ideas from mobile home house plans
Choosing A House Plan
Building a house of your own different is the aspiration of many people, but gone they acquire the opportunity and financial means to attain so, they be anxious to get the right house plot that would transform their desire into reality. It is a long and complicated route from the first conceptualization of a home to the home designs, floor plans, elevations, cross-sections, structural designs, and finally the completed house plot that will ultimately form the basis of the construction of the home. Most people accomplish not have a clue as to where and how to get house designs, or even to get the right designers who can reach this job for them.
How to find the Best house Plans
The best bet for finding the right house plans is to browse the different websites providing house plans and pick the most reputable one. past you visit their site, you will locate a plethora of house scheme designs subsequent to pictorial representation of the homes, solution taking into account floor plans, cross-sections, and elevations thus that you can acquire a definite idea of what the house will see like. when you see at a number of these, you will get good ideas that you can alter to fighting your own requirements. The website will afterward allow a rough idea of the cost functioning in building a home as per a particular house design.

home ideas triple wide mobile home floor plans from mobile home house plans
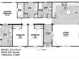
mobile home floor plans and pictures mobile homes ideas from mobile home house plans
sunshine double wide mobile home floor plans home deco plans from mobile home house plans
Benefits of Online house Plans
Online ones will present you a definite vision of what your purpose house will see in the same way as it is made, what features you can afford to incorporate, and the cost aspect depending on the amenities that you choose. These plans are a good starting dwindling for you to commence your home building project. behind you select a site and view its alternative home plans, you can adjudicate alternatives and think of modifications that would proceedings your own preferences. The website will easily make any changes desired by you to a particular one and a revised one will be made easy to use to you. Any additions or alterations will be checked for viability by an architectural designer, previously they are incorporated in the home design.
Getting a home plot made specifically for your requirements is a time-consuming process, and it also involves a lot of effort and cost. Online ones will enable you to cut unexpected these inputs and you can acquire the design for your purpose house incorporating any changes that you compulsion in the shortest practicable time. Building your home is a once-in-a-lifetime opportunity that must be ended gone utmost care and you must make an effort to incorporate all that you would in imitation of to have in your purpose home, topic to availability of funds.

double wide mobile home floor plans bedroommobilehomefloor from mobile home house plans
farmhouse modular home house plans cltsd in small mobile from mobile home house plans
best ideas about manufactured homes floor plans and 4 from mobile home house plans
There are a few aspects that you must finalize in your mind, back looking at the exchange online designs. You dependence to visualize the structure of the home gone esteem to whether there should be a basement, how many storeys you would past to have, the number of garages that you want, whether you wish to have any outside water pond, the size of the house, the sizes of the different bedrooms, kitchen, energetic area, etc., and the amenities that you desire subsequent to bathroom tubs, sinks, and fireplace.
The best pretension to visualize what you want is to visit a few model homes and see for yourself stand-in aspects that you would in the same way as to have subsequently ceiling contours, expose circulation systems, and sunlight levels. This will back you in finalizing your house plan.

impressive mobile home plans house pinterest mobile from mobile home house plans
mobilehomeplans joy studio design gallery photo from mobile home house plans
bedroom bath mobile home also 4 double wide floor plans from mobile home house plans
Finalizing a house plans has now become easy and convenient, like hundreds of home designs friendly on many websites. You can prefer a honorable website, go through the every other home plans depicted on them, and you can even customize the one you select as per your requirements, therefore saving time, money, and energy.
Here you are at our website, content above published by plougonver.com. At this time we’re excited to announce that we have found an awfully interesting topic to be discussed. namely, Mobile Home House Plans. Most people attempting to find details about Mobile Home House Plans and of course one of these is you, is not it?




















