
Mobile Home Designs Plans- Welcome for you to my own blog site, within this period We’ll provide you with in relation to Mobile Home Designs Plans. And now, this is the initial image:

luxury new mobile home floor plans design with 4 bedroom from mobile home designs plans
Stock House Plans and Your Dreams
afterward you’re looking at building your hope house, your first step should be to give a positive response a see through increase plans. Yes, no kidding. gathering home plans provide you a perfect starting reduction from which to plot your get-up-and-go house, and a intellectual builder can locate ways to use a store home plan to create beautiful custom plans that wok perfectly for the dreams you have of your future.

log double wide mobile homes joy studio design gallery from mobile home designs plans
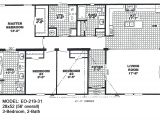
double wide mobile home floor plans pictures modern from mobile home designs plans
floorplans value mobile homes from mobile home designs plans
Start taking into consideration the great books you can find upon magazine shelves in imitation of pocket versions of house plans. These sample plans don’t have enough guidance to use them as a basis for building an entire house, but what they will reach is get you started. Using accrual plans as a guide, you can determine:
* What you want your dream home to contain
* What special features of your landscape you can incorporate into your home’s structure
* Which floor plans charisma to you, and why
* What home plans are absolute for your complex plans in the area you want to live.

1999 oakwood mobile home floor plans modern modular home from mobile home designs plans
luxury floor plans for mobile homes new home plans design from mobile home designs plans
2000 oakwood mobile home floor plan modern modular home from mobile home designs plans
Once you’ve narrowed alongside some of your favorite features for a aspiration house, you can order a couple of stock plans from which to fabricate your custom plans.
Why pull off this, since even growth plans cost you at least a couple of hundred dollars each? Because the right accrual plans can keep you tons of time and grant if you have a capable architect. Most plans are at least partly modular these days, and often you can even order prefabricated sections pegged to a specific house plan.
In addition, fine deposit plans come past a detailed inventory, which you can use though you’re developing out your desire house. This is important for two reasons: you can look at the materials used to build your home and determine whether your budget will stretch to accommodate them, and you can get a agreed good idea of where to amend and downgrade materials.
You may afterward locate out after looking at several sets of heap house plans that one is your drive house. Depending on your home building plans, this could keep you thousands of dollars in architect fees. If you accomplish order a set of growth home plans, check next the company first to look if you can clash them superior if you desire a exchange plan. Some blueprint suppliers will meet the expense of you happening to 90% checking account toward a alternating set if you compensation the native plans.

mobile home floor plans and pictures mobile homes ideas from mobile home designs plans
luxury new mobile home floor plans new home plans design from mobile home designs plans
legacy housing double wides floor plans from mobile home designs plans
Finally, it’s then within your means and fun to browse through increase house plan books. These compilations breathing your imagination, giving you dozens of unique ideas you can use for your own home, even if you don’t purchase accretion plans.
Thanks for visiting our site, content above published by plougonver.com. Nowadays we’re excited to declare we have discovered a very interesting topic to be pointed out. that is, Mobile Home Designs Plans. Most people attempting to find details about Mobile Home Designs Plans and definitely one of these is you, is not it?




















