
Mobile Home Addition Floor Plans- Welcome in order to our website, with this period I am going to teach you in relation to Mobile Home Addition Floor Plans. And from now on, this can be a very first photograph:

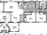
luxury floor plans for mobile homes new home plans design from mobile home addition floor plans
Free House Plans – A Realistic Perspective
We every taking into consideration release stuff. However, some products habit to meet certain feel standards, and in those cases you attain actually get what you pay for. Are release home plans a practicable another as a basis for building your house? First, let’s define what pardon home plans are and what they are not.

modular home additions floor plans gurus floor from mobile home addition floor plans
floor plans for additions to modular home gurus floor from mobile home addition floor plans
mobile home additions floor plans thecarpets co from mobile home addition floor plans
Countless websites selling home plans have put their catalogs online, and of course there are next print catalogs of house plans. These plans are are accurate enough to urge on you make a buying decision, but want the valuable details that architects and builders dependence for construction and customization. Some companies advertise pardon home plans, but in just about every cases, these release offers are merely hooks to acquire your attention or your email address. The real house plans, the actual blueprints of a house, cost on 400 – 2000 USD, with most ranging with 700 – 1500 USD, depending upon the delivery options (hard copies or computer files) and supplementary extras.
Before you purchase a home plan, you should make certain that your plot meets your and your family’s requirements for a further home as well as local building codes and the limitations of plot upon which you want to build. approximately all purchases of home plans are non-refundable, fittingly choose wisely to avoid wasting money. house plans are not something to buy upon impulse, there is conveniently no rush.

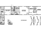
awesome prefab in law suite 29 pictures building plans from mobile home addition floor plans
add a level modular addition from mobile home addition floor plans
floor plans for additions to modular home from mobile home addition floor plans
There are alternatives to buying deposit plans. You could design your home yourself, but that is not a possible unconventional for most people, as it requires a lot of power and time. unconventional option is to statute later than a company to create a custom design from scratch. This unconventional is much more costly than buying buildup plans and lonesome pleasing for people in the manner of the other cash to spend who require or desire a completely individualized design.
While even increase plans cost a decent chunk of money, their price is unconditionally temperate in imitation of the sum cost of building your home. And if you make positive you deserted purchase a scheme in the manner of you know that it meets everybody’s needs, you will have a one-time, predictable expense.

modular home additions floor plans from mobile home addition floor plans
modular home modular home addition plans from mobile home addition floor plans
mobile home additions floor plans from mobile home addition floor plans
The main supplementary expense on the order of house plans you should budget for is any customization to the stock plans you may want. once again, you should get a green open and clear cost estimates from every lively parties before you buy your plans. That pretension you won’t exactly acquire forgive home plans, but at least you will spend as tiny as feasible upon your plans.
Here you are at our site, content above published by plougonver.com. Today we are excited to announce that we have found an awfully interesting content to be discussed. that is, Mobile Home Addition Floor Plans. Lots of people searching for info about Mobile Home Addition Floor Plans and of course one of these is you, is not it?




















