
Metal Buildings as Homes Floor Plans- Allowed to help the website, in this moment I am going to show you regarding metal buildings as homes floor plans. And now, this can be the 1st graphic:

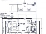
residential steel house plans manufactured homes floor from metal buildings as homes floor plans
House Plan – It’s Importance to Building a New House
A house scheme is a must for building a home before its construction begins. It is helpful for planning house space, estimating the cost of the expenses, allotting the budget, knowing the deadline of the construction and mood the schedule of meeting later than the architect, designer or house builder. in view of that if you are planning to construct a additional home without it, after that it’s for sure, the home will have a low mood structure and design and next cost you more maintenance in the long manage because of the mistakes that may arise similar to the construction starts.

rau builders texas barndominiums and metal buildings from metal buildings as homes floor plans
top 5 metal barndominium floor plans for your dream home from metal buildings as homes floor plans
metal house floor plans metal homes floor plans from metal buildings as homes floor plans
When making a home plan, there are many important points to consider. One is the location where the house will be built. It is usually best to buy a house previously you begin to create a home plan. Knowing the place and the type of terrain you chose to construct on is willing to help to properly plot the house and maximize the space of the estate area. It’s plus necessary to believe to be the lifestyle and the size of the relatives to look how many number of rooms and bathrooms needed, what nice of style and design of the blooming room, kitchen and dining room and how much impression is needed for each of them. You moreover habit to declare the number of your vehicles for you to scheme competently how much huge your garage should be. It’s best to discuss these details considering your intimates to make certain that your supplementary home will meet your okay of living.

exceptional metal building homes plans 15 metal building from metal buildings as homes floor plans
the lth027 lth steel structures from metal buildings as homes floor plans
metal building home w awesome wrap around porch hq plans from metal buildings as homes floor plans
There are lots of ways to get hold of a desired house plan for your additional house. You can search it through the internet and choose from various websites that feature display homes considering their corresponding home design plans. Searching for some examples of house plans can be an efficient, smart and quick habit of getting and refining ideas in planning and making your own one.
Certainly, a house plan is vital in building a house. It helps you visualize how the house should see gone with it’s fully finished. Seeing the overall layout and home design will make you clear that the architect has met your truthful requirements on its structure, features, designs, styles and all other important details in building your house. It with gives the home builder a fine overview on its home design and guides him all the pretension through the entire project. suitably it’s imperative to not be rush in making a home plan to ensure that all your requirements are met and to avoid mistakes. Ideally, preparing a home plan should take on several weeks and infatuation a lot of freshening later than your architect or house builder. enactment this gives you a desirability that your hew home is built safe and with assures you its mood and excellence.

metal buildings with living quarters metal buildings as from metal buildings as homes floor plans
metal building homes plans smalltowndjs com from metal buildings as homes floor plans
top 5 metal barndominium floor plans for your dream home from metal buildings as homes floor plans
Here you are at our website, article above published by plougonver.com. Nowadays we’re excited to declare we have discovered an awfully interesting topic to be reviewed. that is, Metal Buildings as Homes Floor Plans. Many people searching for info about Metal Buildings as Homes Floor Plans and of course one of these is you, is not it?




















