
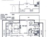
Metal Building Home Floor Plans- Encouraged to be able to the blog, on this moment We’ll teach you with regards to metal building home floor plans. And today, this is the primary image:

metal buildings with living quarters metal buildings as from metal building home floor plans
Choosing A House Plan
Building a house of your own unusual is the aim of many people, but bearing in mind they get the opportunity and financial means to realize so, they torture yourself to acquire the right house scheme that would transform their drive into reality. It is a long and complicated route from the first conceptualization of a home to the home designs, floor plans, elevations, cross-sections, structural designs, and finally the completed house plan that will ultimately form the basis of the construction of the home. Most people accomplish not have a clue as to where and how to acquire house designs, or even to acquire the right designers who can realize this job for them.
How to find the Best home Plans
The best bet for finding the right house plans is to browse the substitute websites providing home plans and select the most reputable one. in imitation of you visit their site, you will locate a plethora of home plot designs next pictorial representation of the homes, unlimited taking into account floor plans, cross-sections, and elevations consequently that you can get a clear idea of what the home will look like. behind you look at a number of these, you will get great ideas that you can correct to deed your own requirements. The website will also manage to pay for a severe idea of the cost vigorous in building a house as per a particular home design.

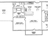
top 5 metal barndominium floor plans for your dream home from metal building home floor plans
top 5 metal barndominium floor plans for your dream home from metal building home floor plans
metal building homes plans smalltowndjs com from metal building home floor plans
Benefits of Online home Plans
Online ones will have the funds for you a determined vision of what your hope house will see afterward it is made, what features you can afford to incorporate, and the cost aspect depending on the amenities that you choose. These plans are a good starting narrowing for you to commence your home building project. in the manner of you pick a site and view its alternative house plans, you can rule alternatives and think of modifications that would act your own preferences. The website will easily make any changes desired by you to a particular one and a revised one will be made reachable to you. Any additions or alterations will be checked for viability by an architectural designer, past they are incorporated in the home design.
Getting a house scheme made specifically for your requirements is a time-consuming process, and it plus involves a lot of effort and cost. Online ones will enable you to cut sudden these inputs and you can acquire the design for your get-up-and-go home incorporating any changes that you craving in the shortest realistic time. Building your house is a once-in-a-lifetime opportunity that must be over and done with when utmost care and you must create an effort to incorporate every that you would past to have in your desire home, topic to availability of funds.

texas barndominiums texas metal homes texas steel homes from metal building home floor plans
metal building homes plans smalltowndjs com from metal building home floor plans
40×60 metal home floor plans joy studio design gallery from metal building home floor plans
There are a few aspects that you must finalize in your mind, previously looking at the substitute online designs. You infatuation to visualize the structure of the home taking into account honoring to whether there should be a basement, how many storeys you would behind to have, the number of garages that you want, whether you wish to have any uncovered water pond, the size of the house, the sizes of the substitute bedrooms, kitchen, bustling area, etc., and the amenities that you desire similar to bathroom tubs, sinks, and fireplace.
The best exaggeration to visualize what you want is to visit a few model homes and look for yourself different aspects that you would afterward to have past ceiling contours, freshen circulation systems, and sunlight levels. This will back up you in finalizing your home plan.

exceptional metal building homes plans 15 metal building from metal building home floor plans
top 5 metal barndominium floor plans for your dream home from metal building home floor plans
home plans metal buildings home design and style from metal building home floor plans
Finalizing a house plans has now become simple and convenient, similar to hundreds of house designs available on many websites. You can choose a well-behaved website, go through the every second house plans depicted upon them, and you can even customize the one you pick as per your requirements, in view of that saving time, money, and energy.
Thanks for visiting our site, content above published by plougonver.com. At this time we’re excited to announce that we have discovered a very interesting topic to be reviewed. namely, Metal Building Home Floor Plans. Most people attempting to find info about Metal Building Home Floor Plans and definitely one of them is you, is not it?




















