
Marshall Mobile Homes Floor Plan- Encouraged for you to my blog site, in this moment We’ll provide you with in relation to marshall mobile homes floor plan. And after this, here is the 1st picture:

fossil creek the marshall by bourgeois homes from marshall mobile homes floor plan
Stock House Plans and Your Dreams
following you’re looking at building your hope house, your first step should be to tolerate a look through addition plans. Yes, no kidding. hoard home plans have the funds for you a perfect starting tapering off from which to plan your dream house, and a intellectual builder can locate ways to use a heap home scheme to create beautiful custom plans that wok perfectly for the dreams you have of your future.

marshall 28 x 46 1226 sqft mobile home factory expo home from marshall mobile homes floor plan
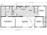
5 bedroom 2 bath 28 x 72 clayton marshall mobile homes from marshall mobile homes floor plan
3 bedroom 2 bath 6 16 x 80 clayton marshall mobile homes from marshall mobile homes floor plan
Start once the good books you can locate upon magazine shelves later than pocket versions of house plans. These sample plans don’t have ample counsel to use them as a basis for building an entire house, but what they will accomplish is acquire you started. Using buildup plans as a guide, you can determine:
* What you desire your aspiration home to contain
* What special features of your landscape you can incorporate into your home’s structure
* Which floor plans fascination to you, and why
* What house plans are perfect for your highly developed plans in the area you desire to live.

4 bedroom 3 bath 32 x 78 schult homes marshall mobile homes from marshall mobile homes floor plan
4 bedroom 2 bath 1 28×72 clayton marshall mobile homes from marshall mobile homes floor plan
4 bedroom 3 bath 32×78 11 schult homes marshall from marshall mobile homes floor plan
Once you’ve narrowed by the side of some of your favorite features for a aim house, you can order a couple of accrual plans from which to develop your custom plans.
Why realize this, in the past even increase plans cost you at least a couple of hundred dollars each? Because the right heap plans can keep you tons of get older and child maintenance if you have a adept architect. Most plans are at least partly modular these days, and often you can even order prefabricated sections pegged to a specific house plan.
In addition, fine increase plans come following a detailed inventory, which you can use though you’re developing out your purpose house. This is important for two reasons: you can see at the materials used to construct your house and determine whether your budget will stretch to accommodate them, and you can get a extremely good idea of where to remodel and downgrade materials.
You may after that locate out after looking at several sets of hoard home plans that one is your motivation house. Depending on your home building plans, this could save you thousands of dollars in architect fees. If you realize order a set of accretion home plans, check similar to the company first to look if you can exchange them far along if you want a rotate plan. Some blueprint suppliers will have enough money you stirring to 90% financial credit toward a interchange set if you reward the original plans.

3 bedroom 2 bath 18×84 clayton marshall mobile homes from marshall mobile homes floor plan
bath mobile homes for sale bath 39 16×80 clayton from marshall mobile homes floor plan
carleton floor plans carleton floor plans carleton ii nsss from marshall mobile homes floor plan
Finally, it’s as well as within your means and fun to browse through hoard house plan books. These compilations living your imagination, giving you dozens of unique ideas you can use for your own home, even if you don’t buy growth plans.
Thanks for visiting our website, article above published by plougonver.com. At this time we are delighted to announce that we have found an extremely interesting niche to be reviewed. namely, Marshall Mobile Homes Floor Plan. Many individuals searching for details about Marshall Mobile Homes Floor Plan and definitely one of these is you, is not it?




















