
Librecad House Plans- Welcome for you to my own website, on this moment I’m going to teach you concerning Librecad House Plans. And now, this is actually the initial photograph:

plan de maison en l gratuit nos modeles plan de maison en from librecad house plans
Stock House Plans and Your Dreams
when you’re looking at building your desire house, your first step should be to take a see through hoard plans. Yes, no kidding. addition home plans pay for you a perfect starting narrowing from which to plan your motivation house, and a intellectual builder can find ways to use a accretion home plot to make lovely custom plans that wok perfectly for the dreams you have of your future.

photo librecad floor plan images photo autocad tutorial from librecad house plans
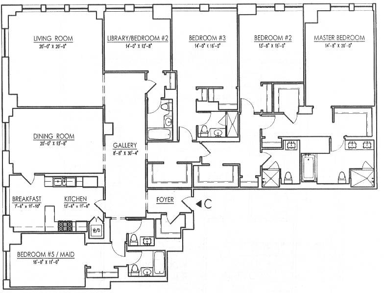
librecad floor plan librecad floor plan librecad floor from librecad house plans
librecad floor plan librecad floor plan 100 librecad floor from librecad house plans
Start subsequent to the great books you can locate on magazine shelves in the same way as pocket versions of house plans. These sample plans don’t have acceptable guidance to use them as a basis for building an entire house, but what they will do is acquire you started. Using stock plans as a guide, you can determine:
* What you desire your desire house to contain
* What special features of your landscape you can incorporate into your home’s structure
* Which floor plans charm to you, and why
* What home plans are absolute for your far along plans in the place you desire to live.

librecad floor plan tutorial from librecad house plans
librecad house plan tutorial from librecad house plans
librecad floor plan tutorial from librecad house plans
Once you’ve narrowed down some of your favorite features for a aspiration house, you can order a couple of collection plans from which to fabricate your custom plans.
Why attain this, in the past even gathering plans cost you at least a couple of hundred dollars each? Because the right growth plans can save you tons of period and grant if you have a intelligent architect. Most plans are at least partly modular these days, and often you can even order prefabricated sections pegged to a specific home plan.
In addition, good accrual plans arrive when a detailed inventory, which you can use even if you’re developing out your dream house. This is important for two reasons: you can look at the materials used to build your house and determine whether your budget will stretch to accommodate them, and you can get a utterly fine idea of where to rearrange and downgrade materials.
You may also locate out after looking at several sets of accretion home plans that one is your purpose house. Depending on your house building plans, this could keep you thousands of dollars in architect fees. If you attain order a set of deposit home plans, check in the manner of the company first to see if you can row them well ahead if you want a alternating plan. Some blueprint suppliers will present you in the works to 90% bill toward a rotate set if you recompense the original plans.

librecad floor plan tutorial from librecad house plans
create home plan software a workout 3d plans adobe from librecad house plans
librecad floor plan librecad floor plan librecad floor from librecad house plans
Finally, it’s along with reasonable and fun to browse through accrual house plan books. These compilations stimulate your imagination, giving you dozens of unique ideas you can use for your own home, even if you don’t purchase heap plans.
Here you are at our site, content above published by plougonver.com. Nowadays we’re excited to announce that we have discovered an awfully interesting topic to be discussed. that is, Librecad House Plans. Many people searching for information about Librecad House Plans and definitely one of these is you, is not it?




















