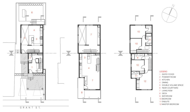
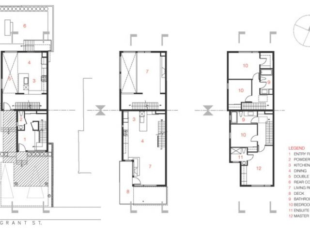
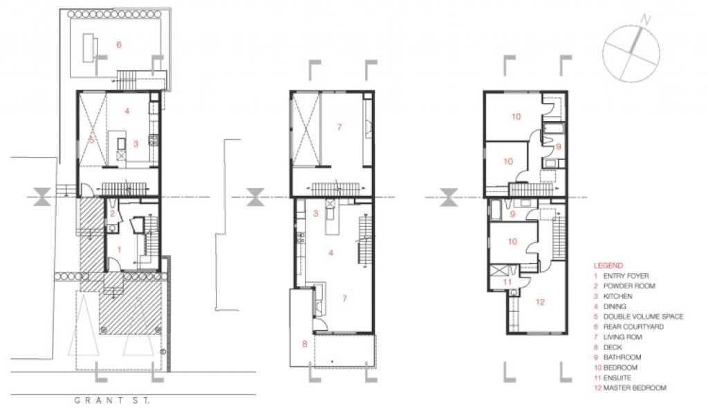
Infill Home Plans Front to Back Infill by Colizza Bruni Architecture is related to House Plans. if you looking for Infill Home Plans Front to Back Infill by Colizza Bruni Architecture and you feel this is useful, you must share this image to your friends. we also hope this image of Infill Home Plans Front to Back Infill by Colizza Bruni Architecture can be useful for you. we will always give new source of image for you
have new images for Infill Home Plans Front to Back Infill by Colizza Bruni Architecture? please contact us immediately.

Disclaimer
Infill Home Plans Front to Back Infill by Colizza Bruni Architecture and all other pictures, designs or photos on our website are copyright of their respective owners. we get our pictures from another websites, search engines and other sources to use as an inspiration for you. please contact us if you think we are infringing copyright of your pictures using contact page. we will be very happy to help you.
Tags:
https://www.plougonver.com/infill-home-plans/infill-home-plans-front-to-back-infill-by-colizza-bruni-architecture/
Download by size:Handphone Tablet Desktop (Original Size)
Back To Infill Home Plans



















