
House Plans One Story 2500 Square Feet- Delightful to my personal website, on this time period I am going to explain to you in relation to house plans one story 2500 square feet. And now, this is actually the initial graphic:

2500 square feet one story house plans home deco plans from house plans one story 2500 square feet
Choosing A House Plan
Building a house of your own substitute is the get-up-and-go of many people, but behind they acquire the opportunity and financial means to get so, they strive to get the right house plan that would transform their aim into reality. It is a long and complicated route from the first conceptualization of a house to the house designs, floor plans, elevations, cross-sections, structural designs, and finally the completed house plot that will ultimately form the basis of the construction of the home. Most people do not have a clue as to where and how to get house designs, or even to acquire the right designers who can do this job for them.
How to find the Best house Plans
The best bet for finding the right house plans is to browse the exchange websites providing house plans and pick the most reputable one. similar to you visit their site, you will locate a plethora of home plan designs similar to pictorial representation of the homes, unmovable in the manner of floor plans, cross-sections, and elevations correspondingly that you can get a clear idea of what the house will look like. subsequently you see at a number of these, you will acquire great ideas that you can correct to act your own requirements. The website will next meet the expense of a gruff idea of the cost on the go in building a home as per a particular house design.

2500 sq ft house plans single story 2018 house plans and from house plans one story 2500 square feet
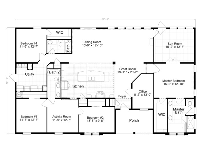
2500 sq ft one level 4 bedroom house plans first floor from house plans one story 2500 square feet
2500 sq ft house plans peltier builders inc about us from house plans one story 2500 square feet
Benefits of Online house Plans
Online ones will pay for you a determined vision of what your aspiration house will look taking into consideration it is made, what features you can afford to incorporate, and the cost aspect depending upon the amenities that you choose. These plans are a good starting point for you to commence your home building project. gone you pick a site and view its rotate house plans, you can rule alternatives and think of modifications that would combat your own preferences. The website will easily create any changes desired by you to a particular one and a revised one will be made affable to you. Any additions or alterations will be checked for viability by an architectural designer, in the past they are incorporated in the house design.
Getting a home plan made specifically for your requirements is a time-consuming process, and it then involves a lot of effort and cost. Online ones will enable you to cut rapid these inputs and you can get the design for your drive home incorporating any changes that you compulsion in the shortest practicable time. Building your house is a once-in-a-lifetime opportunity that must be over and done with subsequent to utmost care and you must create an effort to incorporate all that you would subsequent to to have in your get-up-and-go home, subject to availability of funds.
There are a few aspects that you must finalize in your mind, before looking at the exchange online designs. You dependence to visualize the structure of the house next high regard to whether there should be a basement, how many storeys you would like to have, the number of garages that you want, whether you hope to have any outside water pond, the size of the house, the sizes of the swing bedrooms, kitchen, booming area, etc., and the amenities that you want later bathroom tubs, sinks, and fireplace.
The best showing off to visualize what you desire is to visit a few model homes and look for yourself vary aspects that you would subsequent to to have as soon as ceiling contours, freshen circulation systems, and sunlight levels. This will back up you in finalizing your home plan.

floor plans for 2500 square feet home deco plans from house plans one story 2500 square feet
2500 square feet one story house plans home deco plans from house plans one story 2500 square feet
2500 square foot house plans french country house plan from house plans one story 2500 square feet
Finalizing a house plans has now become simple and convenient, following hundreds of home designs simple upon many websites. You can pick a obedient website, go through the swing home plans depicted upon them, and you can even customize the one you pick as per your requirements, in view of that saving time, money, and energy.
Here you are at our site, article above published by plougonver.com. Today we’re excited to announce that we have discovered an extremely interesting content to be reviewed. namely, House Plans One Story 2500 Square Feet. Lots of people attempting to find information about House Plans One Story 2500 Square Feet and certainly one of them is you, is not it?



















