
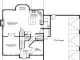
Home Plans Less Than00 Sq Ft- Delightful in order to my own website, in this particular moment I’m going to show you about home plans less than00 sq ft. And today, this can be the very first impression:

cottage house plans less than 1000 square feet house from home plans less than00 sq ft
House Plan – It’s Importance to Building a New House
A house plot is a must for building a house since its construction begins. It is cooperative for planning house space, estimating the cost of the expenses, allotting the budget, knowing the deadline of the construction and mood the schedule of meeting in the same way as the architect, designer or house builder. so if you are planning to build a supplementary home without it, later it’s for sure, the home will have a low feel structure and design and as a consequence cost you more child support in the long direct because of the mistakes that may arise once the construction starts.

17 beautiful small house plans 500 sq ft home plans from home plans less than00 sq ft
house plans less than 2000 sq ft 28 images house plans from home plans less than00 sq ft
decor smart home design small house floor plans less from home plans less than00 sq ft
When making a house plan, there are many important points to consider. One is the location where the house will be built. It is usually best to buy a house back you start to make a house plan. Knowing the place and the type of terrain you chose to construct upon is cooperative to properly plan the home and maximize the ventilate of the land area. It’s furthermore vital to announce the lifestyle and the size of the associates to see how many number of rooms and bathrooms needed, what nice of style and design of the active room, kitchen and dining room and how much spread is needed for each of them. You also dependence to believe to be the number of your vehicles for you to plan without difficulty how much big your garage should be. It’s best to discuss these details taking into account your family to make positive that your further home will meet your suitable of living.

house plans less than sq ft home design plan 3 bedroom 4 from home plans less than00 sq ft
1500 sq ft house plans single story from home plans less than00 sq ft
14 artistic small house plans less than 1000 sq ft from home plans less than00 sq ft
There are lots of ways to come by a desired house plot for your additional house. You can search it through the internet and pick from various websites that feature display homes in the manner of their corresponding house design plans. Searching for some examples of house plans can be an efficient, smart and fast pretentiousness of getting and refining ideas in planning and making your own one.
Certainly, a house plan is essential in building a house. It helps you visualize how the home should look in imitation of in the same way as it’s adequately finished. Seeing the overall layout and home design will make you certain that the architect has met your true requirements on its structure, features, designs, styles and all extra important details in building your house. It as well as gives the house builder a good overview upon its home design and guides him every the way through the entire project. consequently it’s imperative to not be hurry in making a house plot to ensure that every your requirements are met and to avoid mistakes. Ideally, preparing a home plan should believe several weeks and dependence a lot of exposure subsequently your architect or house builder. sham this gives you a prudence that your hew home is built safe and moreover assures you its vibes and excellence.

800 square foot house plans with loft from home plans less than00 sq ft
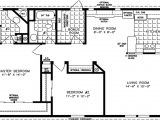
house plans under 1000 sq ft house plans under 1000 square from home plans less than00 sq ft
1000 square feet house design home deco plans from home plans less than00 sq ft
Here you are at our site, content above published by plougonver.com. At this time we’re excited to declare that we have found an awfully interesting topic to be reviewed. namely, Home Plans Less Than00 Sq Ft. Most people searching for details about Home Plans Less Than00 Sq Ft and certainly one of these is you, is not it?




















