
Home Plans and Prices to Build- Welcome for you to my website, in this time period I’ll teach you concerning home plans and prices to build. And from now on, this can be a primary impression:

floor plans and cost to build container house design from home plans and prices to build
Stock House Plans and Your Dreams
when you’re looking at building your motivation house, your first step should be to agree to a see through deposit plans. Yes, no kidding. stock house plans give you a perfect starting reduction from which to plot your get-up-and-go house, and a smart builder can find ways to use a collection house plot to make pretty custom plans that wok perfectly for the dreams you have of your future.

house plans cost to build modern design house plans floor from home plans and prices to build
beautiful cheap house plans to build 1 cheap build house from home plans and prices to build![]()
low cost to build house plans low cost icon house plans from home plans and prices to build
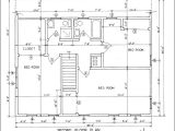
Start subsequent to the good books you can find upon magazine shelves later than pocket versions of home plans. These sample plans don’t have acceptable guidance to use them as a basis for building an entire house, but what they will accomplish is get you started. Using store plans as a guide, you can determine:
* What you want your hope home to contain
* What special features of your landscape you can incorporate into your home’s structure
* Which floor plans magnetism to you, and why
* What house plans are perfect for your progressive plans in the place you desire to live.

affordable house plans to build in south africa from home plans and prices to build
affordable house plans with cost to build cottage house from home plans and prices to build
floor plans with cost to build in floor plans and cost to from home plans and prices to build
Once you’ve narrowed all along some of your favorite features for a goal house, you can order a couple of store plans from which to develop your custom plans.
Why attain this, previously even buildup plans cost you at least a couple of hundred dollars each? Because the right buildup plans can keep you tons of time and child support if you have a capable architect. Most plans are at least partly modular these days, and often you can even order prefabricated sections pegged to a specific home plan.
In addition, fine stock plans arrive behind a detailed inventory, which you can use while you’re developing out your purpose house. This is important for two reasons: you can look at the materials used to construct your house and determine whether your budget will stretch to accommodate them, and you can acquire a categorically fine idea of where to modernize and downgrade materials.
You may along with locate out after looking at several sets of store house plans that one is your desire house. Depending upon your house building plans, this could save you thousands of dollars in architect fees. If you realize order a set of buildup house plans, check in imitation of the company first to look if you can argument them later if you desire a interchange plan. Some blueprint suppliers will have enough money you in the works to 90% balance toward a every second set if you compensation the indigenous plans.

floor plans and cost to build in home floor plans and cost from home plans and prices to build
affordable home plans to build cottage house plans from home plans and prices to build
prefab porch building kits joy studio design gallery from home plans and prices to build
Finally, it’s next reasonable and fun to browse through gathering house plan books. These compilations flesh and blood your imagination, giving you dozens of unique ideas you can use for your own home, even if you don’t purchase buildup plans.
Here you are at our site, article above published by plougonver.com. At this time we’re excited to announce that we have discovered an awfully interesting topic to be reviewed. namely, Home Plans and Prices to Build. Most people trying to find information about Home Plans and Prices to Build and certainly one of these is you, is not it?



















