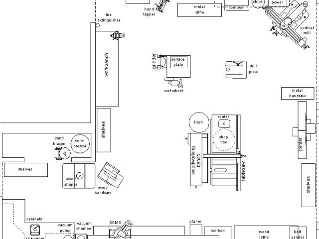
Home and Auto Plan Auto Shop Layout Best Room Home Building Plans 38388

Home and Auto Plan Auto Shop Layout Best Room Home Building Plans 38388 is related to House Plans. if you looking for Home and Auto Plan Auto Shop Layout Best Room Home Building Plans 38388 and you feel this is useful, you must share this image to your friends. we also hope this image of Home and Auto Plan Auto Shop Layout Best Room Home Building Plans 38388 can be useful for you. we will always give new source of image for you

have new images for Home and Auto Plan Auto Shop Layout Best Room Home Building Plans 38388? please contact us immediately.

Home and Auto Plan Auto Shop Layout Best Room Home Building Plans 38388

Disclaimer

Home and Auto Plan Auto Shop Layout Best Room Home Building Plans 38388 and all other pictures, designs or photos on our website are copyright of their respective owners. we get our pictures from another websites, search engines and other sources to use as an inspiration for you. please contact us if you think we are infringing copyright of your pictures using contact page. we will be very happy to help you.

Tags:

https://www.plougonver.com/home-and-auto-plan/home-and-auto-plan-auto-shop-layout-best-room-home-building-plans-38388/

Download by size:Handphone Tablet Desktop (Original Size)

Back To Home and Auto Plan