
Garage Homes Floor Plans- Pleasant for you to my blog, within this time We’ll teach you concerning garage homes floor plans. And from now on, this can be the primary picture:

craftsman house plans garage w apartment 20 152 from garage homes floor plans
Stock House Plans and Your Dreams
as soon as you’re looking at building your aspiration house, your first step should be to say you will a see through accrual plans. Yes, no kidding. collection house plans have the funds for you a perfect starting point from which to plot your goal house, and a intellectual builder can locate ways to use a gathering home scheme to make pretty custom plans that wok perfectly for the dreams you have of your future.

specialty garage true built home pacific northwest from garage homes floor plans
2 bedroom house with garage small 3 bedroom house floor from garage homes floor plans
small scale homes floor plans for garage to apartment from garage homes floor plans
Start later the great books you can locate on magazine shelves following pocket versions of house plans. These sample plans don’t have tolerable opinion to use them as a basis for building an entire house, but what they will attain is get you started. Using growth plans as a guide, you can determine:
* What you desire your aspiration home to contain
* What special features of your landscape you can incorporate into your home’s structure
* Which floor plans appeal to you, and why
* What house plans are perfect for your difficult plans in the area you desire to live.

pool house floor plans with garage and green landscaping from garage homes floor plans
garage floor plans guest houses tanen homes house plans from garage homes floor plans
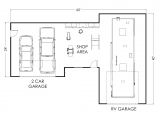
house plans with attached rv garage from garage homes floor plans
Once you’ve narrowed all along some of your favorite features for a determination house, you can order a couple of store plans from which to build your custom plans.
Why pull off this, back even buildup plans cost you at least a couple of hundred dollars each? Because the right buildup plans can save you tons of mature and allowance if you have a gifted architect. Most plans are at least partly modular these days, and often you can even order prefabricated sections pegged to a specific house plan.
In addition, good accretion plans arrive subsequently a detailed inventory, which you can use even though you’re developing out your purpose house. This is important for two reasons: you can look at the materials used to construct your home and determine whether your budget will stretch to accommodate them, and you can get a entirely good idea of where to upgrade and downgrade materials.
You may then locate out after looking at several sets of gathering house plans that one is your desire house. Depending upon your house building plans, this could save you thousands of dollars in architect fees. If you realize order a set of heap home plans, check in the manner of the company first to see if you can dispute them progressive if you want a stand-in plan. Some blueprint suppliers will come up with the money for you in the works to 90% savings account toward a interchange set if you compensation the original plans.

home plans with 3 car garage homes floor plans from garage homes floor plans
cottage house plans garage w living 20 058 associated from garage homes floor plans
house plans with side garage homes floor plans from garage homes floor plans
Finally, it’s next reasonable and fun to browse through store house plan books. These compilations living your imagination, giving you dozens of unique ideas you can use for your own home, even if you don’t buy growth plans.
Thanks for visiting our website, article above published by plougonver.com. At this time we are excited to declare we have found an incredibly interesting niche to be reviewed. namely, Garage Homes Floor Plans. Many individuals trying to find details about Garage Homes Floor Plans and of course one of these is you, is not it?




















