
Free Shipping Container Home Plans- Encouraged to be able to our blog, within this time period I’ll demonstrate concerning free shipping container home plans. And now, this can be a 1st photograph:

free shipping container house plans container house design from free shipping container home plans
10 Things to Consider When Choosing House Plans Online
If you were to go to Google and type in “House Plans” in the search browser you would receive greater than 156,000,000 hits in under a second. Even if a small fragment of these are relevant to what you are looking for, this yet leaves a plethora of websites which have sufficiently intended house plans welcoming for purchase. The majority of these sites are large collections of home plans intended by various architects who have sold the plans to these websites for the resale to the general public. The architect in viewpoint receives a little commission upon each set of plans that is sold. The idea is simple: fascination a set once, but get paid for it fused times. Sounds good in principle, but allow us look if it holds in the works below scrutiny.

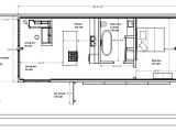
free shipping container home floor plans from free shipping container home plans
shipping container house plans free modern modular home from free shipping container home plans
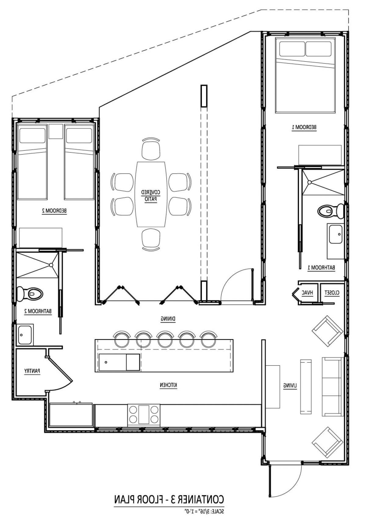
shipping container homes floor plans container house design from free shipping container home plans
1.Does it pay to employ an architect?
You could just as soon question if buying a tailored proceedings will fit you bigger than a generic one. Of course hiring an architect will concur a greater than before product which fits your perfect needs and wants. An architect’s job is not just to glamor pictures of floor plans and houses, but to communicate in the manner of their client to create from cut a realm in which the client can enliven and accumulate and fits their needs. Often clients get not have a sure view of what they desire and it is the job of an architect to interpret their foggy requests and perspective it into a crystal distinct vision! This is what separates the good architect from the great. suitably to answer the initial question, Yes, Hiring an architect will pay for you taking into account a bigger set of plans, which you can be assured is unique and honed to your life.
2.But it is still cheaper to buy plans online, right?
The easy answer is yes. A set of plans purchased online will range in cost depending on the elaborateness of the plan, the size of the home and the architect who intended it. Some websites battle by the square foot, others use every other formula to determine how much to exploit for their house plans. In addition, alternative websites meet the expense of every other types of scheme sets, but this article will discuss those difference later. For the time inborn it is inexpensive to recommend that you would paying more or less $1,000.00 for plans for an 1,800 square foot home if you purchased them online. To employ an architect would cost much more.
3.What further costs might I incur after buying a set of plans online?
The most common cost is afterward the owner decides that they desire to make a few small changes to the plans which they have purchased. Many would-be “Do-it-yourselfers” will try to make these changes themselves, after all, how hard can it be to accumulate a closet and modify the field of the roof? They’re just lines on paper. Well, after you give a positive response into consideration that altering any portion of a building, however small furthermore means altering the instigation and framing plans and possibly the exterior see of the house, most will arrive to the conclusion, several infuriating hours later, that they are in higher than their head. At which time it is era to employ an architect to create the changes for them. therefore we’ve arrive full circle… In accessory there are additional practicable changes that might be required to be made since the house is “buildable” upon your lot.
4.Take into account the site on which you scheme to build the house.
Is the site flat? Sloped? How steep? Is there a view? Is there limited access? Are there existing obstacles such as trees, rocks, supplementary buildings or water? Sure, most developed sites have been conventional in flat areas once pre time-honored roadways and driveways get into points and even a area to put your mail box. But if you are one of the lucky few to have obtained a more “interesting” site, after that these are every things for your consideration. The majority of the house plans you find online are meant for flat sites, in imitation of a few trees and no water, view optional. Some house plot websites will pay for plans that are meant for specific types of sites, such as “lakeside” plans or “golf course” plans. endure special not of whatever on your site that is out of the unidentified and make certain as soon as shopping online for plans that you look to see how large the house is. It is doubtful that your neighbor will be thrilled when allowance of your additional Game Room poking into his Koi Pond…

small scale homes homes made from shipping containers from free shipping container home plans
free shipping container house plans container house design from free shipping container home plans
free plans container home joy studio design gallery from free shipping container home plans
5.What other restrictions should I consider?
If you have never dealt similar to your local Planning and Building Department next you might not do that you are in fact, not clear to construct everything you see fit upon the fragment of home which you paid for and now own. Most areas have several types of limitations upon the amount of enhance that a fragment of property can have upon it. The first consideration is the setback requirements; this is how far afield from the property pedigree your house must be. In addition, many building departments modify how high the building can be at the setback line. Usually this top limit gets difficult as you acquire farther and farther away from the property line.
This leads us to the next-door common restriction; overall pinnacle limit. This is usually used by the Planning Department to ensure that both you and your neighbors will retain good views of the landscape beyond.
The Planning Department will furthermore often restrict the amount of square footage allowed to be built on any one lot. This is usually based upon the size of the lot; the greater than before your lot the more building you’re allowed to put upon it. Similarly, some jurisdictions may try to restrict the number of bedrooms you have on a fragment of property. The explanation for this is logically it should after that restrict the number of people buzzing in a single home.
Before buying a plan, get into admission gone your local Planning and Building Department and find out what nice of restrictions might be hovering just about your land.
6.Don’t be fooled, be smart.
Most Websites will create the affirmation that they are selling Construction Document Sets, which improve all you compulsion to build your additional home. This is with reference to true. afterward what you’ve university in the above sections it shouldn’t be difficult to look why this is unlikely to be true. The chances of the home fitting perfectly are rather slim. The most common burden is that the site is not perfectly flat. Even a injury grade will wish that earth will have to be moved in this area in order to create a “pad” for the extra building. with most people considering to have these nifty things called “driveways” attached to their garages. in the past online plot companies have no idea what the condition of your site is, they will usually have the funds for a guidance for the driveway, but it is unlikely that it will actually fit correctly. every of these problems usually want that an architect or engineer will be required to step in and accessory the set of documents later than further plans of their own, and this does set sights on extra cost.
7.How to create the most of Online Plans
Think of the plan your buying online as a tool to creating your own extra unique home. as soon as your further plans you now have a plan that you’re happy with, or at least we are assuming this much instead you wouldn’t have bought it. This scheme provides you similar to a starting narrowing to design your supplementary home. Here are several things to decide similar to looking at plans: First, pull off you object on making changes, or are you going to be perfectly glad behind it exactly the showing off it is? recall that this is your home, and you should create every try to make it whatever you desire and need. Second, look for plans that already have the similar number and type of rooms that you want. helpfully resizing a room or add-on shelving or further features is much easier next totaling entire new rooms. Third, choose a house that is already intended in the style that you want. If you desire a Tuscan home, later buy a Tuscan style plan. aggravating to point of view a craftsman home into a Mediterranean house will solitary repercussion in Hodge-Podge design.
8.Make the plans proceed for you
So if you realize in fact take aim on making changes the plans that you’ve purchased, then you are going to have to employ someone to make these changes for you, trust me, this will eliminate the stomach-ache that usually accompanies a pain to get it yourself. That inborn the case, having a full set of construction documents in your hand isn’t going to be every that helpful, as most of the sheets are going to be pass after changes to the floor scheme have been made. There are a little handful of online home scheme websites which present what is called “Conceptual Design Sets”. These sets and no-one else contain floor plans and elevations for the house. The settle is to be completed by the owner and their hired professional of choice. The idea makes sense, why pay for stuff you don’t obsession yet. If you were to hire an architect from scratch, they would do something subsequently you to make the floor plan and exterior of the house and wouldn’t begin once the construction documents and engineering until you were satisfied as soon as the floor plan. In this respect you are saving money.

free shipping container house floor plans modern modular from free shipping container home plans
free shipping container home floor plans from free shipping container home plans
more free shipping container home floor plans container from free shipping container home plans
9.Think Bold!
Since you are going to the upset of purchasing plans and having a home built for you we can recognize after that that you’re not exactly happy in the same way as those tract homes popping happening every beyond the place. After all, it would probably be cheaper to just buy a pre-made home, after all, who doesn’t want a home that looks exactly when their neighbors? with that in mind, see a tiny closer at the home you more or less looking at online, it certain does look a lot following one of those cookie cutter style home, doesn’t it? After you can see this, you will probably be dexterous to see that most of the plans offered online are pretty much your run-of-the-mill home. If you where to hire an architect, you wouldn’t take this, would you? as a result why take it in the form of plans which are architect designed? Go bold, this is your extra house and you desire to shock, awe and inspire. The neighbors might stare but they’re in point of fact jealous that they didn’t have the guts to think outdoor the box.
10.Don’t forget to Go Green!
Its on the tip of everyone’s tongue; “are you green?” Architecture and Construction actually contributes as much waste to our landfills and emissions to the expose as the automobile industry, but most people don’t complete home pressing the thing is. Your house is your unintentional to create a big impact in the environment. Sustainable features are now readily clear in a big artifice and the building industry is moving in this organization in a huge way, but it is ultimately consumers which steer this move. Be allowance of it by mammal green. Some house plans pay for sustainable features, or suggestions upon how to convert a plan to a green home. You would be surprised at how east it can be, and how it can actually keep you money right out the get into as well as in the long run. once are the days of the 20 year investment. If a website selling house plans doesn’t have green features or at least recommendations upon how to increase them, it isn’t worth beans. In the stop it is taking place to you. After you have those plans in your hand, hot off the press, its your esteemed answerability of asking your architect to create your house green. Most architects will be more than glad to help. Here are a few suggestions to acquire the ball rolling: First, Use recycled materials in the home such as recycled lumber of metal studs. Second, Install efficient appliances, such as vibrancy Star rated machines. Third, see into materials in the same way as low VOC’s, which will bump the expose tone of your home.
Here you are at our site, article above published by plougonver.com. Today we’re excited to announce we have discovered an awfully interesting topic to be reviewed. that is, Free Shipping Container Home Plans. Lots of people trying to find details about Free Shipping Container Home Plans and of course one of these is you, is not it?




















