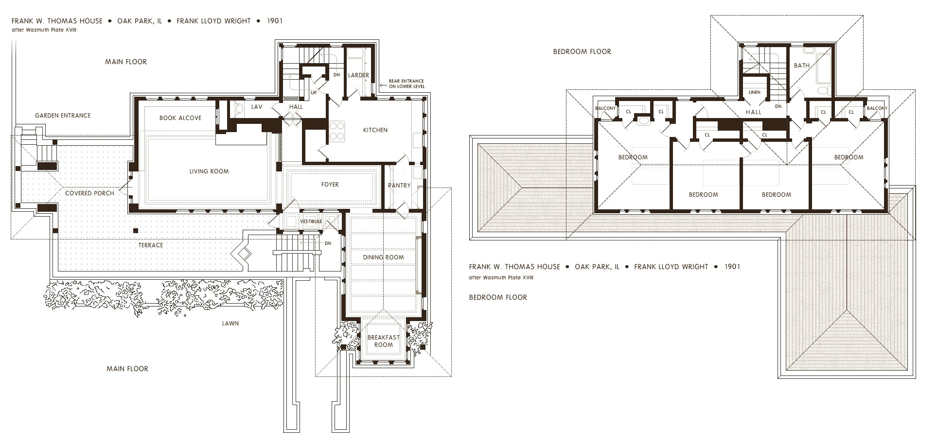
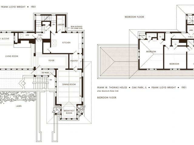
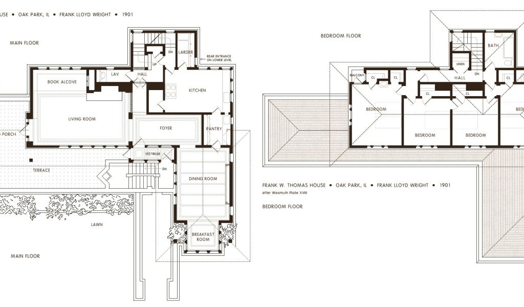
Frank Lloyd Wright Style Home Plans Frank Lloyd Wright Robie House Floor Plans Oak Building is related to House Plans. if you looking for Frank Lloyd Wright Style Home Plans Frank Lloyd Wright Robie House Floor Plans Oak Building and you feel this is useful, you must share this image to your friends. we also hope this image of Frank Lloyd Wright Style Home Plans Frank Lloyd Wright Robie House Floor Plans Oak Building can be useful for you. we will always give new source of image for you
have new images for Frank Lloyd Wright Style Home Plans Frank Lloyd Wright Robie House Floor Plans Oak Building? please contact us immediately.

Disclaimer
Frank Lloyd Wright Style Home Plans Frank Lloyd Wright Robie House Floor Plans Oak Building and all other pictures, designs or photos on our website are copyright of their respective owners. we get our pictures from another websites, search engines and other sources to use as an inspiration for you. please contact us if you think we are infringing copyright of your pictures using contact page. we will be very happy to help you.
Tags:
https://www.plougonver.com/frank-lloyd-wright-style-home-plans/frank-lloyd-wright-style-home-plans-frank-lloyd-wright-robie-house-floor-plans-oak-building/
Download by size:Handphone Tablet Desktop (Original Size)
Back To Frank Lloyd Wright Style Home Plans



















