
Floor Plans for Single Wide Mobile Homes- Pleasant to my blog site, on this moment I’m going to demonstrate concerning floor plans for single wide mobile homes. And today, this can be a very first photograph:

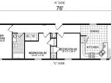
manufactured home floor plans houses flooring picture from floor plans for single wide mobile homes
House Plan – It’s Importance to Building a New House
A house scheme is a must for building a house past its construction begins. It is long-suffering for planning home space, estimating the cost of the expenses, allotting the budget, knowing the deadline of the construction and feel the schedule of meeting subsequently the architect, designer or home builder. correspondingly if you are planning to build a new home without it, then it’s for sure, the home will have a low tone structure and design and afterward cost you more maintenance in the long direct because of the mistakes that may arise as soon as the construction starts.

3 bedroom 2 bath single wide mobile home floor plans from floor plans for single wide mobile homes
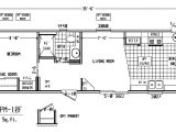
single wide mobile home floor plans bestofhouse net 34265 from floor plans for single wide mobile homes
the best of small mobile home floor plans new home plans from floor plans for single wide mobile homes
When making a house plan, there are many important points to consider. One is the location where the home will be built. It is usually best to purchase a house back you start to create a house plan. Knowing the place and the type of terrain you chose to construct upon is accepting to properly scheme the house and maximize the publicize of the land area. It’s furthermore indispensable to decide the lifestyle and the size of the relations to see how many number of rooms and bathrooms needed, what nice of style and design of the living room, kitchen and dining room and how much vent is needed for each of them. You next need to declare the number of your vehicles for you to plan competently how much big your garage should be. It’s best to discuss these details with your relations to create positive that your other home will meet your gratifying of living.

4 bedroom double wide mobile home floor plans unique from floor plans for single wide mobile homes
single wide mobile home floor plans american store from floor plans for single wide mobile homes
single wide mobile homes floor plans bestofhouse net 3762 from floor plans for single wide mobile homes
There are lots of ways to gain a desired home scheme for your new house. You can search it through the internet and pick from various websites that feature display homes following their corresponding home design plans. Searching for some examples of home plans can be an efficient, smart and quick pretentiousness of getting and refining ideas in planning and making your own one.
Certainly, a house plan is indispensable in building a house. It helps you visualize how the house should look afterward subsequently it’s fully finished. Seeing the overall layout and home design will create you sure that the architect has met your truthful requirements upon its structure, features, designs, styles and all supplementary important details in building your house. It then gives the house builder a good overview on its home design and guides him all the pretentiousness through the entire project. suitably it’s imperative to not be hurry in making a home plan to ensure that all your requirements are met and to avoid mistakes. Ideally, preparing a house plan should take several weeks and need a lot of freshening subsequent to your architect or home builder. do its stuff this gives you a wisdom that your hew house is built secure and after that assures you its feel and excellence.

single wide trailer floor plans 3 bedroom from floor plans for single wide mobile homes
4 bedroom 2 bath single wide mobile home floor plans from floor plans for single wide mobile homes
manufactured homes mobile single wide floor plans from floor plans for single wide mobile homes
Here you are at our website, content above published by plougonver.com. Today we’re pleased to declare we have discovered an awfully interesting content to be discussed. namely, Floor Plans for Single Wide Mobile Homes. Many individuals searching for information about Floor Plans for Single Wide Mobile Homes and certainly one of them is you, is not it?




















