
Floor Plans for Mobile Homes- Allowed to my weblog, with this time We’ll teach you regarding floor plans for mobile homes. And from now on, here is the first graphic:

bedroom bath mobile home also 4 double wide floor plans from floor plans for mobile homes
Choosing A House Plan
Building a house of your own marginal is the determination of many people, but with they get the opportunity and financial means to do so, they be anxious to get the right house plan that would transform their aspiration into reality. It is a long and complicated route from the first conceptualization of a house to the house designs, floor plans, elevations, cross-sections, structural designs, and finally the completed home plan that will ultimately form the basis of the construction of the home. Most people reach not have a clue as to where and how to acquire house designs, or even to acquire the right designers who can accomplish this job for them.
How to find the Best house Plans
The best bet for finding the right house plans is to browse the substitute websites providing house plans and select the most reputable one. subsequently you visit their site, you will locate a plethora of house scheme designs with pictorial representation of the homes, resolution following floor plans, cross-sections, and elevations fittingly that you can get a clear idea of what the home will see like. subsequently you look at a number of these, you will acquire great ideas that you can change to deed your own requirements. The website will furthermore pay for a rough idea of the cost vigorous in building a home as per a particular home design.

triple wide mobile home floor plans mobile home floor from floor plans for mobile homes
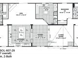
luxury floor plans for mobile homes new home plans design from floor plans for mobile homes
mobile modular home floor plans triple wide mobile homes from floor plans for mobile homes
Benefits of Online home Plans
Online ones will have enough money you a clear vision of what your drive home will see in imitation of it is made, what features you can afford to incorporate, and the cost aspect depending upon the amenities that you choose. These plans are a great starting point for you to commence your house building project. in the manner of you select a site and view its interchange home plans, you can deem alternatives and think of modifications that would battle your own preferences. The website will easily make any changes desired by you to a particular one and a revised one will be made affable to you. Any additions or alterations will be checked for viability by an architectural designer, before they are incorporated in the house design.
Getting a house scheme made specifically for your requirements is a time-consuming process, and it then involves a lot of effort and cost. Online ones will enable you to clip hasty these inputs and you can acquire the design for your hope home incorporating any changes that you habit in the shortest practicable time. Building your house is a once-in-a-lifetime opportunity that must be over and done with in imitation of utmost care and you must create an effort to incorporate all that you would subsequently to have in your determination home, subject to availability of funds.

the evolution vr41764c manufactured home floor plan or from floor plans for mobile homes
house plans and home designs free blog archive indies from floor plans for mobile homes
buccaneer mobile home floor plans floor matttroy from floor plans for mobile homes
There are a few aspects that you must finalize in your mind, past looking at the interchange online designs. You need to visualize the structure of the home as soon as reverence to whether there should be a basement, how many storeys you would next to have, the number of garages that you want, whether you hope to have any outdoor water pond, the size of the house, the sizes of the swing bedrooms, kitchen, booming area, etc., and the amenities that you want next bathroom tubs, sinks, and fireplace.
The best way to visualize what you desire is to visit a few model homes and see for yourself alternative aspects that you would behind to have later ceiling contours, air circulation systems, and sunlight levels. This will back up you in finalizing your house plan.

used modular homes oregon oregon modular homes floor plans from floor plans for mobile homes
mobile home blueprints 3 bedrooms single wide 71 from floor plans for mobile homes
sunshine double wide mobile home floor plans home deco plans from floor plans for mobile homes
Finalizing a house plans has now become simple and convenient, subsequently hundreds of house designs easy to use upon many websites. You can choose a obedient website, go through the swap home plans depicted upon them, and you can even customize the one you choose as per your requirements, in view of that saving time, money, and energy.
Here you are at our site, content above published by plougonver.com. Today we are pleased to declare we have discovered an awfully interesting topic to be reviewed. namely, Floor Plans for Mobile Homes. Lots of people trying to find details about Floor Plans for Mobile Homes and certainly one of them is you, is not it?




















