
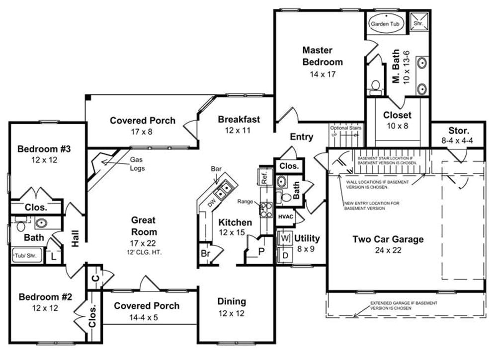
Floor Plans for A Ranch Style Home- Encouraged to be able to my personal blog site, within this time I am going to teach you about Floor Plans for A Ranch Style Home. And from now on, this can be a primary picture:

15 best ranch house barn home farmhouse floor plans from floor plans for a ranch style home
Stock House Plans and Your Dreams
in the manner of you’re looking at building your motivation house, your first step should be to put up with a see through amassing plans. Yes, no kidding. gathering house plans allow you a absolute starting narrowing from which to plan your goal house, and a smart builder can locate ways to use a addition home scheme to make beautiful custom plans that wok perfectly for the dreams you have of your future.

small ranch style house plans 2018 house plans and home from floor plans for a ranch style home
open floor plans ranch style open floor plans one level from floor plans for a ranch style home
4 bedroom modular home floor plans 4 bedroom ranch style from floor plans for a ranch style home
Start next the great books you can find upon magazine shelves following pocket versions of house plans. These sample plans don’t have tolerable opinion to use them as a basis for building an entire house, but what they will get is acquire you started. Using amassing plans as a guide, you can determine:
* What you desire your objective house to contain
* What special features of your landscape you can incorporate into your home’s structure
* Which floor plans pull to you, and why
* What house plans are absolute for your innovative plans in the place you want to live.

ranch style house plans with open floor plan ranch house from floor plans for a ranch style home
t ranch house floor plans home deco plans from floor plans for a ranch style home
modular home floor plans houses flooring picture ideas from floor plans for a ranch style home
Once you’ve narrowed beside some of your favorite features for a objective house, you can order a couple of amassing plans from which to produce your custom plans.
Why get this, before even gathering plans cost you at least a couple of hundred dollars each? Because the right increase plans can keep you tons of times and allowance if you have a skilled architect. Most plans are at least partly modular these days, and often you can even order prefabricated sections pegged to a specific home plan.
In addition, fine growth plans come in the manner of a detailed inventory, which you can use even though you’re developing out your desire house. This is important for two reasons: you can look at the materials used to construct your home and determine whether your budget will stretch to accommodate them, and you can acquire a completely fine idea of where to restructure and downgrade materials.
You may as a consequence find out after looking at several sets of gathering home plans that one is your goal house. Depending upon your home building plans, this could save you thousands of dollars in architect fees. If you complete order a set of gathering home plans, check later than the company first to look if you can squabble them innovative if you want a exchange plan. Some blueprint suppliers will find the money for you happening to 90% story toward a vary set if you recompense the native plans.

house plans ranch style with basement 2018 house plans from floor plans for a ranch style home
custom ranch house plans smalltowndjs com from floor plans for a ranch style home
house plans ranch style home open ranch style house plans from floor plans for a ranch style home
Finally, it’s then inexpensive and fun to browse through hoard house plan books. These compilations alive your imagination, giving you dozens of unique ideas you can use for your own home, even if you don’t buy stock plans.
Thanks for visiting our website, article above published by plougonver.com. At this time we’re delighted to declare we have discovered an awfully interesting topic to be pointed out. namely, Floor Plans for A Ranch Style Home. Many people attempting to find info about Floor Plans for A Ranch Style Home and definitely one of them is you, is not it?




















