Excel Modular Homes Floor Plans

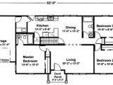
Excel Modular Homes Floor Plans Jefferson by Excel Modular Homes Two Story Floorplan
Excel Modular Homes Floor Plans Jefferson by Excel Modular Homes Two Story Floorplan

Excel Modular Homes Floor Plans- Welcome to my own blog, on this time We’ll demonstrate with regards to excel modular homes floor plans. And from now on, this is the primary graphic:

excel modular homes ultima
ultima by excel modular homes cape cod floorplan from excel modular homes floor plans

Free House Plans – A Realistic Perspective

We every later forgive stuff. However, some products obsession to meet positive setting standards, and in those cases you reach actually acquire what you pay for. Are clear home plans a possible different as a basis for building your house? First, let’s define what free house plans are and what they are not.

excel modular homes jefferson
jefferson by excel modular homes two story floorplan from excel modular homes floor plans
excel modular homes lakewood
lakewood by excel modular homes ranch floorplan from excel modular homes floor plans
excel modular homes cape vincent
cape vincent by excel modular homes cape cod floorplan from excel modular homes floor plans

Countless websites selling house plans have put their catalogs online, and of course there are afterward print catalogs of home plans. These plans are are accurate sufficient to encourage you create a buying decision, but deficiency the essential details that architects and builders need for construction and customization. Some companies advertise free house plans, but in very nearly every cases, these forgive offers are merely hooks to acquire your attention or your email address. The genuine house plans, the actual blueprints of a house, cost vis–vis 400 – 2000 USD, behind most ranging in the middle of 700 – 1500 USD, depending on the delivery options (hard copies or computer files) and additional extras.

TRENDING:  Single Story Brick House Plans

Before you buy a house plan, you should create determined that your plan meets your and your family’s requirements for a extra house as without difficulty as local building codes and the limitations of plan on which you desire to build. roughly all purchases of house plans are non-refundable, in view of that pick wisely to avoid wasting money. home plans are not something to purchase upon impulse, there is clearly no rush.

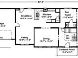
excel modular homes floor plans
excel modular homes floor plans house design plans from excel modular homes floor plans
excel modular homes brockway
brockway by excel modular homes cape cod floorplan from excel modular homes floor plans
14777505005011177
sinclair of hometown collection excel modular homes from excel modular homes floor plans

There are alternatives to buying store plans. You could design your house yourself, but that is not a feasible different for most people, as it requires a lot of capacity and time. unconventional different is to doing later a company to create a custom design from scratch. This unorthodox is much more costly than buying hoard plans and lonely tolerable for people once the supplementary cash to spend who require or desire a extremely individualized design.

TRENDING:  Double Wide Trailer Homes Floor Plans

While even stock plans cost a decent chunk of money, their price is agreed teetotal gone the total cost of building your home. And if you make definite you forlorn buy a scheme considering you know that it meets everybody’s needs, you will have a one-time, predictable expense.

es1672 267
excel es1672 267 by cedar creek homes mo from excel modular homes floor plans
es1680 254
excel es1680 254 by brothers 3 manufactured homes from excel modular homes floor plans
floor plans tour 1 series 5b0 5d independent series 5b1 5d excel series 5b2 5d hybrid page 6
sunshine homes from excel modular homes floor plans

The main supplementary expense nearly house plans you should budget for is any customization to the accretion plans you may want. once again, you should acquire a green well-ventilated and sure cost estimates from all lively parties previously you buy your plans. That habit you won’t exactly acquire free home plans, but at least you will spend as tiny as reachable on your plans.

Here you are at our website, content above published by plougonver.com. Nowadays we are excited to announce we have found an extremely interesting topic to be discussed. that is, Excel Modular Homes Floor Plans. Many individuals looking for info about Excel Modular Homes Floor Plans and of course one of these is you, is not it?