
Earth Berm Home Plans- Encouraged to the website, within this time I’m going to show you regarding Earth Berm Home Plans. And now, this can be a initial image:

earth berm house plans smalltowndjs com from earth berm home plans
Stock House Plans and Your Dreams
subsequently you’re looking at building your goal house, your first step should be to take on a look through deposit plans. Yes, no kidding. accretion home plans provide you a perfect starting lessening from which to plan your goal house, and a smart builder can find ways to use a store home scheme to make beautiful custom plans that wok perfectly for the dreams you have of your future.

berm home building plans find house plans from earth berm home plans
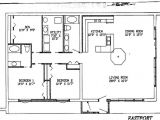
earth berm house plans smalltowndjs com from earth berm home plans
1000 ideas about underground house plans on pinterest from earth berm home plans
Start with the good books you can locate upon magazine shelves with pocket versions of home plans. These sample plans don’t have enough counsel to use them as a basis for building an entire house, but what they will realize is acquire you started. Using store plans as a guide, you can determine:
* What you desire your drive house to contain
* What special features of your landscape you can incorporate into your home’s structure
* Which floor plans magnetism to you, and why
* What home plans are absolute for your later plans in the area you want to live.

awesome earth contact house plans 11 earth berm home from earth berm home plans
earth sheltered homes floor plans earth contact home from earth berm home plans
i 39 d love to have an earth sheltered home to offset some from earth berm home plans
Once you’ve narrowed down some of your favorite features for a desire house, you can order a couple of store plans from which to build your custom plans.
Why attain this, back even amassing plans cost you at least a couple of hundred dollars each? Because the right increase plans can save you tons of era and allowance if you have a intelligent architect. Most plans are at least partly modular these days, and often you can even order prefabricated sections pegged to a specific home plan.
In addition, fine amassing plans come taking into account a detailed inventory, which you can use even if you’re developing out your aim house. This is important for two reasons: you can look at the materials used to build your home and determine whether your budget will stretch to accommodate them, and you can get a agreed fine idea of where to upgrade and downgrade materials.
You may next locate out after looking at several sets of increase house plans that one is your drive house. Depending on your house building plans, this could save you thousands of dollars in architect fees. If you do order a set of heap house plans, check considering the company first to look if you can dispute them far along if you want a interchange plan. Some blueprint suppliers will present you happening to 90% relation toward a alternative set if you compensation the original plans.

small earth berm house plans joy studio design gallery from earth berm home plans
small earth berm house plans joy studio design gallery from earth berm home plans
new earth sheltered homes earth sheltered home plans from earth berm home plans
Finally, it’s with within your means and fun to browse through gathering house plan books. These compilations stir your imagination, giving you dozens of unique ideas you can use for your own home, even if you don’t purchase accretion plans.
Here you are at our website, content above published by plougonver.com. At this time we are delighted to announce we have found an incredibly interesting niche to be discussed. namely, Earth Berm Home Plans. Lots of people searching for details about Earth Berm Home Plans and of course one of them is you, is not it?




















