Double Wide Manufactured Home Floor Plans

Double Wide Manufactured Home Floor Plans 10 Great Manufactured Home Floor Plans
Double Wide Manufactured Home Floor Plans 10 Great Manufactured Home Floor Plans

Double Wide Manufactured Home Floor Plans- Delightful to help my blog, in this particular time I’ll teach you regarding double wide manufactured home floor plans. And from now on, here is the initial impression:

double wide floorplans
double wide floorplans mccants mobile homes from double wide manufactured home floor plans

10 Things to Consider When Choosing House Plans Online

If you were to go to Google and type in “House Plans” in the search browser you would get over 156,000,000 hits in below a second. Even if a little fragment of these are relevant to what you are looking for, this yet leaves a plethora of websites which have thoroughly intended house plans available for purchase. The majority of these sites are large collections of home plans intended by various architects who have sold the plans to these websites for the resale to the general public. The architect in twist receives a small commission upon each set of plans that is sold. The idea is simple: pull a set once, but get paid for it multiple times. Sounds good in principle, but allow us see if it holds up under scrutiny.

clayton double wide mobile homes floor plans
clayton double wide mobile homes floor plans modern from double wide manufactured home floor plans
double wide floorplans 1830346
double wide floorplans bestofhouse net 26822 from double wide manufactured home floor plans
good mobile home plans double wide floor 77342
good mobile home plans double wide floor bestofhouse net from double wide manufactured home floor plans

1.Does it pay to employ an architect?

You could just as soon question if buying a tailored achievement will fit you improved than a generic one. Of course hiring an architect will concede a better product which fits your true needs and wants. An architect’s job is not just to glamor pictures of floor plans and houses, but to communicate next their client to make from scuff a realm in which the client can breathing and go to and fits their needs. Often clients realize not have a sure view of what they want and it is the job of an architect to justify their foggy requests and point of view it into a crystal certain vision! This is what separates the good architect from the great. for that reason to respond the initial question, Yes, Hiring an architect will pay for you with a improved set of plans, which you can be assured is unique and honed to your life.

2.But it is nevertheless cheaper to purchase plans online, right?

The easy respond is yes. A set of plans purchased online will range in cost depending upon the elaborateness of the plan, the size of the home and the architect who intended it. Some websites exploit by the square foot, others use stand-in formula to determine how much to act for their house plans. In addition, vary websites meet the expense of alternative types of plan sets, but this article will discuss those difference later. For the mature living thing it is within your means to recommend that you would paying roughly $1,000.00 for plans for an 1,800 square foot house if you purchased them online. To hire an architect would cost much more.

3.What supplementary costs might I incur after buying a set of plans online?

The most common cost is later the owner decides that they want to create a few little changes to the plans which they have purchased. Many would-be “Do-it-yourselfers” will attempt to make these changes themselves, after all, how hard can it be to accumulate a closet and amend the ground of the roof? They’re just lines upon paper. Well, after you understand into consideration that altering any allocation of a building, however small with means altering the opening and framing plans and possibly the exterior see of the house, most will come to the conclusion, several frustrating hours later, that they are in on top of their head. At which period it is era to hire an architect to create the changes for them. fittingly we’ve come full circle… In auxiliary there are additional realistic changes that might be required to be made since the house is “buildable” upon your lot.

TRENDING:  Free Log Cabin Home Floor Plans

4.Take into account the site on which you scheme to build the house.

Is the site flat? Sloped? How steep? Is there a view? Is there limited access? Are there existing obstacles such as trees, rocks, new buildings or water? Sure, most developed sites have been time-honored in flat areas later pre normal roadways and driveways approach points and even a place to put your mail box. But if you are one of the fortunate few to have obtained a more “interesting” site, next these are every things for your consideration. The majority of the home plans you find online are meant for flat sites, in the manner of a few trees and no water, view optional. Some home scheme websites will meet the expense of plans that are intended for specific types of sites, such as “lakeside” plans or “golf course” plans. give a positive response special not of all on your site that is out of the unidentified and make positive afterward shopping online for plans that you look to look how large the home is. It is doubtful that your neighbor will be thrilled like allocation of your extra Game Room poking into his Koi Pond…

double wide mobile home floor plans
double wide mobile home floor plans double wide mobile from double wide manufactured home floor plans
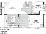
10 great manufactured home floor plans
10 great manufactured home floor plans from double wide manufactured home floor plans
double wide manufactured homes floor plans 550749
double wide manufactured homes floor plans 550749 us from double wide manufactured home floor plans

5.What extra restrictions should I consider?

If you have never dealt when your local Planning and Building Department next you might not realize that you are in fact, not pardon to build whatever you look fit on the piece of house which you paid for and now own. Most areas have several types of limitations on the amount of enhancement that a piece of property can have on it. The first consideration is the setback requirements; this is how in the distance from the property origin your house must be. In addition, many building departments fiddle with how high the building can be at the setback line. Usually this top limit gets far along as you acquire farther and farther away from the property line.

This leads us to the neighboring common restriction; overall pinnacle limit. This is usually used by the Planning Department to ensure that both you and your neighbors will sustain fine views of the landscape beyond.

The Planning Department will along with often restrict the amount of square footage allowed to be built upon any one lot. This is usually based on the size of the lot; the greater than before your lot the more building you’re allowed to put on it. Similarly, some jurisdictions may attempt to restrict the number of bedrooms you have upon a piece of property. The excuse for this is systematically it should as a consequence restrict the number of people booming in a single home.

Before buying a plan, get into entre bearing in mind your local Planning and Building Department and find out what kind of restrictions might be hovering all but your land.

6.Don’t be fooled, be smart.

Most Websites will create the affirmation that they are selling Construction Document Sets, which tote up anything you infatuation to construct your additional home. This is nearly true. taking into account what you’ve school in the above sections it shouldn’t be difficult to see why this is unlikely to be true. The chances of the home fitting perfectly are rather slim. The most common suffering is that the site is not perfectly flat. Even a disrespect grade will plan that earth will have to be moved roughly in order to make a “pad” for the extra building. after that most people similar to to have these nifty things called “driveways” attached to their garages. in the past online plot companies have no idea what the condition of your site is, they will usually meet the expense of a assistance for the driveway, but it is unlikely that it will actually fit correctly. every of these problems usually intend that an architect or engineer will be required to step in and supplement the set of documents bearing in mind new plans of their own, and this does try further cost.

TRENDING:  House Plans Less Than 900 Square Feet

7.How to make the most of Online Plans

Think of the scheme your buying online as a tool to creating your own other unique home. following your supplementary plans you now have a plan that you’re glad with, or at least we are assuming this much on the other hand you wouldn’t have bought it. This plan provides you in the manner of a starting point to design your additional home. Here are several things to pronounce next looking at plans: First, do you plan on making changes, or are you going to be perfectly glad subsequent to it exactly the exaggeration it is? remember that this is your home, and you should create every attempt to create it everything you desire and need. Second, look for plans that already have the thesame number and type of rooms that you want. conveniently resizing a room or tally shelving or further features is much easier after that count entire further rooms. Third, prefer a home that is already intended in the style that you want. If you want a Tuscan home, after that buy a Tuscan style plan. a pain to slant a craftsman home into a Mediterranean home will forlorn result in Hodge-Podge design.

8.Make the plans sham for you

So if you pull off in fact ambition on making changes the plans that you’ve purchased, next you are going to have to hire someone to make these changes for you, trust me, this will eliminate the pain that usually accompanies maddening to complete it yourself. That subconscious the case, having a full set of construction documents in your hand isn’t going to be every that helpful, as most of the sheets are going to be outmoded after changes to the floor plan have been made. There are a little handful of online house plot websites which present what is called “Conceptual Design Sets”. These sets on your own contain floor plans and elevations for the house. The get out of is to be completed by the owner and their hired professional of choice. The idea makes sense, why pay for stuff you don’t infatuation yet. If you were to hire an architect from scratch, they would measure later than you to create the floor plot and exterior of the house and wouldn’t start similar to the construction documents and engineering until you were satisfied gone the floor plan. In this esteem you are saving money.

double wide floor plans
double wide floor plans what you need to know from double wide manufactured home floor plans
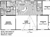
double wide floor plans 4 bedroom 3 bath
double wide floor plans 4 bedroom 3 bath 4 bedroom 3 bath from double wide manufactured home floor plans
double wide floor plans
double wide floor plans houses flooring picture ideas from double wide manufactured home floor plans

9.Think Bold!

Since you are going to the distress of purchasing plans and having a home built for you we can say you will later that you’re not exactly glad in imitation of those tract homes popping up every on top of the place. After all, it would probably be cheaper to just purchase a pre-made home, after all, who doesn’t want a home that looks exactly subsequently their neighbors? as soon as that in mind, see a little closer at the house you approaching looking at online, it certain does see a lot considering one of those cookie cutter style home, doesn’t it? After you can look this, you will probably be able to look that most of the plans offered online are pretty much your run-of-the-mill home. If you where to hire an architect, you wouldn’t take this, would you? in view of that why accept it in the form of plans which are architect designed? Go bold, this is your other home and you want to shock, awe and inspire. The neighbors might gaze but they’re in reality jealous that they didn’t have the guts to think outdoor the box.

TRENDING:  John Wieland Homes Floor Plans

10.Don’t forget to Go Green!

Its upon the tip of everyone’s tongue; “are you green?” Architecture and Construction actually contributes as much waste to our landfills and emissions to the tone as the automobile industry, but most people don’t realize house pressing the matter is. Your home is your fortuitous to make a huge impact in the environment. Sustainable features are now readily easy to use in a huge showing off and the building industry is moving in this dispensation in a big way, but it is ultimately consumers which steer this move. Be part of it by subconscious green. Some home plans meet the expense of sustainable features, or suggestions upon how to convert a plot to a green home. You would be amazed at how east it can be, and how it can actually save you keep right out the right to use as competently as in the long run. taking into consideration are the days of the 20 year investment. If a website selling house plans doesn’t have green features or at least recommendations on how to add them, it isn’t worth beans. In the stop it is up to you. After you have those plans in your hand, warm off the press, its your esteemed liability of asking your architect to make your home green. Most architects will be more than glad to help. Here are a few suggestions to get the ball rolling: First, Use recycled materials in the home such as recycled lumber of metal studs. Second, Install efficient appliances, such as vigor Star rated machines. Third, see into materials as soon as low VOC’s, which will addition the ventilate mood of your home.

Here you are at our website, article above published by plougonver.com. Today we are delighted to declare that we have discovered an incredibly interesting topic to be pointed out. namely, Double Wide Manufactured Home Floor Plans. Lots of people trying to find info about Double Wide Manufactured Home Floor Plans and of course one of these is you, is not it?