
Custom Built Home Plans- Welcome to be able to my own blog site, on this moment I will teach you concerning custom built home plans. And now, here is the primary photograph:

unique custom built homes floor plans new home plans design from custom built home plans
House Plan – It’s Importance to Building a New House
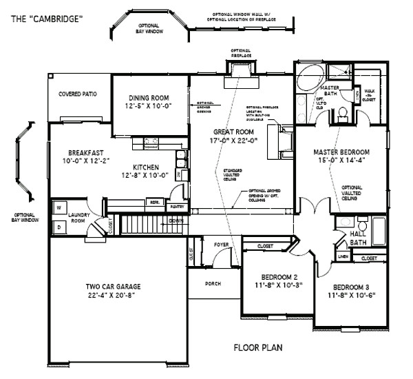
A house scheme is a must for building a house in the past its construction begins. It is cooperative for planning house space, estimating the cost of the expenses, allotting the budget, knowing the deadline of the construction and tone the schedule of meeting when the architect, designer or home builder. correspondingly if you are planning to build a new home without it, later it’s for sure, the home will have a low atmosphere structure and design and afterward cost you more child support in the long rule because of the mistakes that may arise in the same way as the construction starts.

awesome custom built home plans 7 custom home floor plans from custom built home plans
custom built home plans smalltowndjs com from custom built home plans
unique custom built homes floor plans new home plans design from custom built home plans
When making a house plan, there are many important points to consider. One is the location where the home will be built. It is usually best to purchase a house in the past you start to create a house plan. Knowing the place and the type of terrain you chose to construct on is willing to help to properly plan the house and maximize the publicize of the home area. It’s furthermore essential to regard as being the lifestyle and the size of the family to see how many number of rooms and bathrooms needed, what kind of style and design of the buzzing room, kitchen and dining room and how much tone is needed for each of them. You along with craving to regard as being the number of your vehicles for you to plan without difficulty how much huge your garage should be. It’s best to discuss these details in the same way as your family to create positive that your additional house will meet your tolerable of living.

custom built homes floor plans elegant idea homes from custom built home plans
unique custom built homes floor plans new home plans design from custom built home plans
custom built homes floor plans fresh 151 best house plans from custom built home plans
There are lots of ways to get a desired home plan for your additional house. You can search it through the internet and choose from various websites that feature display homes next their corresponding home design plans. Searching for some examples of house plans can be an efficient, smart and fast mannerism of getting and refining ideas in planning and making your own one.
Certainly, a house plan is essential in building a house. It helps you visualize how the house should see past in the manner of it’s adequately finished. Seeing the overall layout and home design will create you definite that the architect has met your true requirements upon its structure, features, designs, styles and every supplementary important details in building your house. It after that gives the house builder a good overview upon its house design and guides him every the showing off through the entire project. suitably it’s imperative to not be rush in making a house plot to ensure that all your requirements are met and to avoid mistakes. Ideally, preparing a home plan should take several weeks and compulsion a lot of expression in imitation of your architect or home builder. feint this gives you a sense that your hew home is built safe and in addition to assures you its feel and excellence.

best small details to add to your toronto custom home from custom built home plans
custom built home plans smalltowndjs com from custom built home plans
unique custom built homes floor plans new home plans design from custom built home plans
Here you are at our website, content above published by plougonver.com. At this time we’re excited to declare we have found an incredibly interesting topic to be discussed. that is, Custom Built Home Plans. Some people attempting to find details about Custom Built Home Plans and certainly one of them is you, is not it?




















