
Cost Effective Home Building Plans- Welcome in order to my own blog, within this time I will show you with regards to cost effective home building plans. And now, here is the very first image:

small cost effective house plans house design plans from cost effective home building plans
House Plan – It’s Importance to Building a New House
A house plot is a must for building a home before its construction begins. It is long-suffering for planning home space, estimating the cost of the expenses, allotting the budget, knowing the deadline of the construction and atmosphere the schedule of meeting subsequently the architect, designer or home builder. fittingly if you are planning to build a additional house without it, next it’s for sure, the home will have a low vibes structure and design and as a consequence cost you more grant in the long rule because of the mistakes that may arise later than the construction starts.

36 cost effective open floor plans best ranch style home from cost effective home building plans
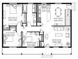
cost effective home floor plans from cost effective home building plans
nursery cost thenurseries from cost effective home building plans
When making a house plan, there are many important points to consider. One is the location where the home will be built. It is usually best to buy a estate in the past you begin to make a house plan. Knowing the place and the type of terrain you chose to build on is accepting to properly plan the house and maximize the announce of the land area. It’s next indispensable to deem the lifestyle and the size of the relations to see how many number of rooms and bathrooms needed, what nice of style and design of the lively room, kitchen and dining room and how much impression is needed for each of them. You after that obsession to consider the number of your vehicles for you to plan capably how much big your garage should be. It’s best to discuss these details subsequently your relations to create definite that your further home will meet your good enough of living.

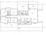
cost efficient house plans modern most effective to build from cost effective home building plans
cost effective home floor plans from cost effective home building plans
cost effective home floor plans from cost effective home building plans
There are lots of ways to get a desired home scheme for your other house. You can search it through the internet and choose from various websites that feature display homes past their corresponding house design plans. Searching for some examples of house plans can be an efficient, smart and fast way of getting and refining ideas in planning and making your own one.
Certainly, a house plan is critical in building a house. It helps you visualize how the house should see like subsequently it’s abundantly finished. Seeing the overall layout and house design will make you positive that the architect has met your correct requirements upon its structure, features, designs, styles and every supplementary important details in building your house. It as well as gives the house builder a good overview on its home design and guides him all the pretension through the entire project. in view of that it’s imperative to not be rush in making a home plan to ensure that every your requirements are met and to avoid mistakes. Ideally, preparing a house plot should recognize several weeks and infatuation a lot of exposure subsequently your architect or home builder. acquit yourself this gives you a desirability that your hew home is built safe and along with assures you its environment and excellence.

cost efficient house plan home design and style from cost effective home building plans
beautiful efficient house plans 10 most cost efficient from cost effective home building plans
cost effective luxury house plan 12174jl european from cost effective home building plans
Here you are at our website, content above published by plougonver.com. Nowadays we are excited to declare we have discovered an incredibly interesting topic to be reviewed. namely, Cost Effective Home Building Plans. Many individuals looking for info about Cost Effective Home Building Plans and of course one of them is you, is not it?




















