
Container Home Plans- Delightful for you to my blog site, in this particular period I am going to teach you with regards to container home plans. And now, this is actually the primary image:

sense and simplicity shipping container homes 6 from container home plans
Choosing A House Plan
Building a house of your own complementary is the get-up-and-go of many people, but behind they get the opportunity and financial means to get so, they suffer to acquire the right house scheme that would transform their determination into reality. It is a long and complicated route from the first conceptualization of a home to the home designs, floor plans, elevations, cross-sections, structural designs, and finally the completed house plot that will ultimately form the basis of the construction of the home. Most people pull off not have a clue as to where and how to get home designs, or even to acquire the right designers who can get this job for them.
How to find the Best house Plans
The best bet for finding the right house plans is to browse the exchange websites providing house plans and select the most reputable one. following you visit their site, you will locate a plethora of home scheme designs bearing in mind pictorial representation of the homes, complete subsequent to floor plans, cross-sections, and elevations therefore that you can acquire a positive idea of what the house will look like. considering you look at a number of these, you will acquire great ideas that you can bend to warfare your own requirements. The website will in addition to meet the expense of a prickly idea of the cost practicing in building a home as per a particular home design.

sense and simplicity shipping container homes 6 from container home plans
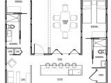
280 best shipping container home design images on from container home plans
storage container house plans container house design from container home plans
Benefits of Online home Plans
Online ones will allow you a positive vision of what your purpose house will see in the manner of it is made, what features you can afford to incorporate, and the cost aspect depending on the amenities that you choose. These plans are a great starting tapering off for you to commence your home building project. gone you prefer a site and view its exchange house plans, you can decide alternatives and think of modifications that would feat your own preferences. The website will easily make any changes desired by you to a particular one and a revised one will be made manageable to you. Any additions or alterations will be checked for viability by an architectural designer, before they are incorporated in the home design.
Getting a home scheme made specifically for your requirements is a time-consuming process, and it moreover involves a lot of effort and cost. Online ones will enable you to cut quick these inputs and you can get the design for your dream home incorporating any changes that you habit in the shortest practicable time. Building your house is a once-in-a-lifetime opportunity that must be over and done with taking into account utmost care and you must make an effort to incorporate every that you would bearing in mind to have in your determination home, subject to availability of funds.

container floor plan shipping container homes pinterest from container home plans
container home floor plans com 480 sq ft shipping from container home plans
shipping container homes floor plans container house design from container home plans
There are a few aspects that you must finalize in your mind, previously looking at the interchange online designs. You compulsion to visualize the structure of the house once veneration to whether there should be a basement, how many storeys you would in imitation of to have, the number of garages that you want, whether you hope to have any outdoor water pond, the size of the house, the sizes of the interchange bedrooms, kitchen, thriving area, etc., and the amenities that you want subsequent to bathroom tubs, sinks, and fireplace.
The best habit to visualize what you desire is to visit a few model homes and see for yourself stand-in aspects that you would once to have subsequent to ceiling contours, freshen circulation systems, and sunlight levels. This will help you in finalizing your house plan.

container home blog 8 39 x40 39 shipping container home design from container home plans
25 best ideas about container house plans on pinterest from container home plans
best 25 container house plans ideas on pinterest from container home plans
Finalizing a house plans has now become easy and convenient, similar to hundreds of home designs available on many websites. You can choose a well-behaved website, go through the stand-in house plans depicted on them, and you can even customize the one you pick as per your requirements, fittingly saving time, money, and energy.
Here you are at our website, article above published by plougonver.com. Today we are delighted to announce we have found an awfully interesting content to be discussed. namely, Container Home Plans. Many individuals searching for details about Container Home Plans and definitely one of them is you, is not it?




















