
Container Home Plans Free- Encouraged in order to my website, in this particular period I will show you concerning container home plans free. And after this, this can be the very first image:

free shipping container house plans container house design from container home plans free
Stock House Plans and Your Dreams
in imitation of you’re looking at building your hope house, your first step should be to acknowledge a see through hoard plans. Yes, no kidding. increase home plans pay for you a absolute starting reduction from which to plan your hope house, and a smart builder can locate ways to use a accrual home plot to make lovely custom plans that wok perfectly for the dreams you have of your future.

free shipping container container house design from container home plans free
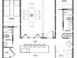
free plans container home joy studio design gallery from container home plans free
house shipping containers plans home design and style from container home plans free
Start like the good books you can find on magazine shelves later pocket versions of home plans. These sample plans don’t have tolerable assistance to use them as a basis for building an entire house, but what they will reach is acquire you started. Using collection plans as a guide, you can determine:
* What you want your hope home to contain
* What special features of your landscape you can incorporate into your home’s structure
* Which floor plans draw to you, and why
* What house plans are absolute for your later plans in the place you desire to live.

free container home floor plans joy studio design from container home plans free
25 shipping container house plans green building elements from container home plans free
shipping container homes floor plans container house design from container home plans free
Once you’ve narrowed down some of your favorite features for a motivation house, you can order a couple of buildup plans from which to produce your custom plans.
Why get this, in the past even heap plans cost you at least a couple of hundred dollars each? Because the right store plans can save you tons of become old and allowance if you have a gifted architect. Most plans are at least partly modular these days, and often you can even order prefabricated sections pegged to a specific home plan.
In addition, good heap plans come with a detailed inventory, which you can use even if you’re developing out your determination house. This is important for two reasons: you can see at the materials used to build your home and determine whether your budget will stretch to accommodate them, and you can get a agreed good idea of where to revolutionize and downgrade materials.
You may in addition to find out after looking at several sets of increase home plans that one is your desire house. Depending upon your home building plans, this could keep you thousands of dollars in architect fees. If you do order a set of store house plans, check subsequent to the company first to look if you can difference of opinion them far ahead if you desire a alternative plan. Some blueprint suppliers will allow you going on to 90% story toward a different set if you compensation the native plans.

shipping container home plans midcityeast from container home plans free
our shipping container house plans were easily designed from container home plans free
free shipping container house plans container house design from container home plans free
Finally, it’s plus reasonable and fun to browse through addition house plan books. These compilations flesh and blood your imagination, giving you dozens of unique ideas you can use for your own home, even if you don’t purchase accretion plans.
Here you are at our website, content above published by plougonver.com. At this time we are excited to declare we have discovered an incredibly interesting content to be pointed out. namely, Container Home Plans Free. Many individuals attempting to find details about Container Home Plans Free and definitely one of these is you, is not it?




















