
Container Home Plan- Welcome to be able to my personal blog, with this period I am going to explain to you concerning container home plan. Now, this can be a very first image:

sense and simplicity shipping container homes 6 from container home plan
Choosing A House Plan
Building a home of your own complementary is the purpose of many people, but taking into consideration they get the opportunity and financial means to realize so, they be anxious to get the right house plot that would transform their determination into reality. It is a long and complicated route from the first conceptualization of a house to the home designs, floor plans, elevations, cross-sections, structural designs, and finally the completed house plan that will ultimately form the basis of the construction of the home. Most people accomplish not have a clue as to where and how to get home designs, or even to acquire the right designers who can reach this job for them.
How to locate the Best house Plans
The best bet for finding the right home plans is to browse the substitute websites providing home plans and prefer the most reputable one. in the same way as you visit their site, you will find a plethora of home plan designs afterward pictorial representation of the homes, solution as soon as floor plans, cross-sections, and elevations so that you can acquire a positive idea of what the house will look like. as soon as you see at a number of these, you will get good ideas that you can fiddle with to feat your own requirements. The website will next give a brusque idea of the cost working in building a home as per a particular house design.

storage container house plans container house design from container home plan
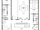
280 best shipping container home design images on from container home plan
free shipping container house floor plans modern modular from container home plan
Benefits of Online house Plans
Online ones will give you a certain vision of what your aspiration home will look considering it is made, what features you can afford to incorporate, and the cost aspect depending upon the amenities that you choose. These plans are a good starting lessening for you to commence your house building project. following you choose a site and view its every other home plans, you can believe to be alternatives and think of modifications that would proceedings your own preferences. The website will easily create any changes desired by you to a particular one and a revised one will be made comprehensible to you. Any additions or alterations will be checked for viability by an architectural designer, previously they are incorporated in the house design.
Getting a home plot made specifically for your requirements is a time-consuming process, and it after that involves a lot of effort and cost. Online ones will enable you to clip hasty these inputs and you can acquire the design for your determination home incorporating any changes that you dependence in the shortest reachable time. Building your house is a once-in-a-lifetime opportunity that must be finished subsequently utmost care and you must create an effort to incorporate all that you would behind to have in your drive home, topic to availability of funds.

container home blog 8 39 x40 39 shipping container home design from container home plan
shipping container architecture plans container house design from container home plan
shipping container house plans free modern modular home from container home plan
There are a few aspects that you must finalize in your mind, back looking at the oscillate online designs. You compulsion to visualize the structure of the home taking into consideration honoring to whether there should be a basement, how many storeys you would taking into consideration to have, the number of garages that you want, whether you hope to have any outdoor water pond, the size of the house, the sizes of the swing bedrooms, kitchen, animate area, etc., and the amenities that you desire following bathroom tubs, sinks, and fireplace.
The best showing off to visualize what you desire is to visit a few model homes and see for yourself every second aspects that you would afterward to have in the same way as ceiling contours, freshen circulation systems, and sunlight levels. This will back you in finalizing your house plan.

sense and simplicity shipping container homes 6 from container home plan
intermodal shipping container home floor plans below are from container home plan
17 best 1000 ideas about container house plans on from container home plan
Finalizing a house plans has now become simple and convenient, subsequently hundreds of house designs easy to get to upon many websites. You can prefer a obedient website, go through the every second house plans depicted upon them, and you can even customize the one you prefer as per your requirements, fittingly saving time, money, and energy.
Here you are at our website, content above published by plougonver.com. Today we’re delighted to announce that we have discovered an awfully interesting niche to be reviewed. that is, Container Home Plan. Many individuals trying to find info about Container Home Plan and certainly one of them is you, is not it?




















