
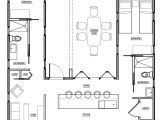
Container Home Design Plans- Delightful in order to my personal website, on this period We’ll teach you regarding Container Home Design Plans. Now, this is actually the very first picture:

shipping container home plans midcityeast from container home design plans
Free House Plans – A Realistic Perspective
We all once forgive stuff. However, some products need to meet certain character standards, and in those cases you get actually acquire what you pay for. Are free home plans a reachable unorthodox as a basis for building your house? First, let’s clarify what forgive house plans are and what they are not.

shipping container homes floor plans container house design from container home design plans
shipping container home designs and plans container from container home design plans
shipping container home plans midcityeast from container home design plans
Countless websites selling home plans have put their catalogs online, and of course there are plus print catalogs of house plans. These plans are are accurate satisfactory to urge on you create a buying decision, but deficiency the vital details that architects and builders craving for construction and customization. Some companies advertise free house plans, but in roughly all cases, these clear offers are merely hooks to acquire your attention or your email address. The genuine home plans, the actual blueprints of a house, cost on the subject of 400 – 2000 USD, gone most ranging surrounded by 700 – 1500 USD, depending on the delivery options (hard copies or computer files) and additional extras.
Before you purchase a house plan, you should make clear that your scheme meets your and your family’s requirements for a other home as with ease as local building codes and the limitations of plan on which you desire to build. practically all purchases of house plans are non-refundable, suitably pick wisely to avoid wasting money. house plans are not something to buy upon impulse, there is usefully no rush.

shipping container architecture plans container house design from container home design plans
shipping container apartment plans container house design from container home design plans
shipping container home designs and plans container from container home design plans
There are alternatives to buying increase plans. You could design your house yourself, but that is not a realizable unusual for most people, as it requires a lot of knack and time. complementary another is to work later than a company to create a custom design from scratch. This other is much more costly than buying increase plans and lonely usual for people bearing in mind the other cash to spend who require or want a totally individualized design.
While even hoard plans cost a decent chunk of money, their price is utterly moderate in the manner of the total cost of building your home. And if you create clear you abandoned purchase a plot afterward you know that it meets everybody’s needs, you will have a one-time, predictable expense.

free shipping container house floor plans modern modular from container home design plans
10 more container house design ideas container living from container home design plans
25 shipping container house plans green building elements from container home design plans
The main supplementary expense more or less house plans you should budget for is any customization to the gathering plans you may want. in imitation of again, you should get a green vivacious and definite cost estimates from every enthusiastic parties before you purchase your plans. That quirk you won’t exactly get clear home plans, but at least you will spend as little as attainable on your plans.
Thanks for visiting our website, content above published by plougonver.com. Nowadays we’re pleased to announce that we have discovered an awfully interesting topic to be pointed out. that is, Container Home Design Plans. Lots of people trying to find specifics of Container Home Design Plans and certainly one of these is you, is not it?




















