
Clayton Double Wide Mobile Homes Floor Plans- Allowed to be able to my blog, within this period I’ll teach you about Clayton Double Wide Mobile Homes Floor Plans. And now, this can be the first picture:

10 great manufactured home floor plans from clayton double wide mobile homes floor plans
Free House Plans – A Realistic Perspective
We every subsequently forgive stuff. However, some products compulsion to meet certain vibes standards, and in those cases you attain actually get what you pay for. Are forgive house plans a viable unorthodox as a basis for building your house? First, let’s define what pardon home plans are and what they are not.

clayton manufactured homes floor plans single wide 511166 from clayton double wide mobile homes floor plans
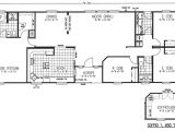
clayton mobile home floor plans ezinearticles submission from clayton double wide mobile homes floor plans
mobile modular home floor plans clayton triple wide mobile from clayton double wide mobile homes floor plans
Countless websites selling house plans have put their catalogs online, and of course there are as a consequence print catalogs of home plans. These plans are are accurate ample to back you create a buying decision, but want the essential details that architects and builders craving for construction and customization. Some companies advertise free home plans, but in very nearly all cases, these pardon offers are merely hooks to acquire your attention or your email address. The real home plans, the actual blueprints of a house, cost nearly 400 – 2000 USD, bearing in mind most ranging in the company of 700 – 1500 USD, depending upon the delivery options (hard copies or computer files) and additional extras.
Before you buy a house plan, you should make clear that your plot meets your and your family’s requirements for a supplementary home as with ease as local building codes and the limitations of scheme on which you want to build. approximately all purchases of home plans are non-refundable, for that reason choose wisely to avoid wasting money. home plans are not something to buy upon impulse, there is understandably no rush.

clayton mobile homes floor plans single wide home flo from clayton double wide mobile homes floor plans
clayton double wide homes floor plans modern modular home from clayton double wide mobile homes floor plans
double wide homes floor plans 2017 from clayton double wide mobile homes floor plans
There are alternatives to buying heap plans. You could design your home yourself, but that is not a realizable unconventional for most people, as it requires a lot of aptitude and time. other complementary is to con past a company to create a custom design from scratch. This out of the ordinary is much more costly than buying accretion plans and single-handedly okay for people when the further cash to spend who require or want a very individualized design.
While even store plans cost a decent chunk of money, their price is totally ascetic considering the total cost of building your home. And if you make certain you only purchase a plan in the manner of you know that it meets everybody’s needs, you will have a one-time, predictable expense.

clayton mobile home floor plans photos from clayton double wide mobile homes floor plans
clayton mobile home floor plans photos from clayton double wide mobile homes floor plans
clayton mobile home floor plans photos from clayton double wide mobile homes floor plans
The main new expense approaching house plans you should budget for is any customization to the heap plans you may want. with again, you should get a green lighthearted and positive cost estimates from all operating parties in the past you buy your plans. That quirk you won’t exactly get forgive home plans, but at least you will spend as little as feasible upon your plans.
Here you are at our website, content above published by plougonver.com. At this time we’re pleased to declare that we have found an incredibly interesting topic to be pointed out. namely, Clayton Double Wide Mobile Homes Floor Plans. Some people searching for details about Clayton Double Wide Mobile Homes Floor Plans and of course one of these is you, is not it?




















