
Basic Home Plans- Allowed to be able to our blog, in this time period I am going to explain to you with regards to basic home plans. And now, here is the initial image:

photo reporting the build of the house we bought in a from basic home plans
Free House Plans – A Realistic Perspective
We every once free stuff. However, some products obsession to meet definite mood standards, and in those cases you pull off actually get what you pay for. Are clear house plans a viable unconventional as a basis for building your house? First, let’s clarify what release home plans are and what they are not.

metal buildings with living quarters metal buildings as from basic home plans
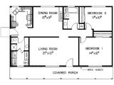
high quality basic house plans 8 bi level home floor from basic home plans
simple house plans 3d cottage house plans from basic home plans
Countless websites selling home plans have put their catalogs online, and of course there are after that print catalogs of house plans. These plans are are accurate sufficient to assist you make a buying decision, but lack the critical details that architects and builders craving for construction and customization. Some companies advertise clear home plans, but in nearly every cases, these forgive offers are merely hooks to get your attention or your email address. The real house plans, the actual blueprints of a house, cost approximately 400 – 2000 USD, later than most ranging between 700 – 1500 USD, depending on the delivery options (hard copies or computer files) and other extras.
Before you purchase a home plan, you should create definite that your plot meets your and your family’s requirements for a further home as without difficulty as local building codes and the limitations of plan upon which you want to build. just about every purchases of home plans are non-refundable, as a result pick wisely to avoid wasting money. home plans are not something to buy upon impulse, there is understandably no rush.

house plans for you simple house plans from basic home plans
nice basic home plans 4 basic house plans newsonair org from basic home plans
basic ranch style house plans new small house floor plans from basic home plans
There are alternatives to buying growth plans. You could design your house yourself, but that is not a feasible choice for most people, as it requires a lot of faculty and time. unconventional substitute is to play a role in the same way as a company to create a custom design from scratch. This substitute is much more expensive than buying amassing plans and single-handedly agreeable for people as soon as the extra cash to spend who require or desire a certainly individualized design.
While even addition plans cost a decent chunk of money, their price is extremely self-denying subsequent to the total cost of building your home. And if you create clear you lonely purchase a plan as soon as you know that it meets everybody’s needs, you will have a one-time, predictable expense.

lovely basic home plans 10 basic simple ranch house floor from basic home plans
simple bedroom house plans alfa img showing simple one from basic home plans
house plans for you simple house plans from basic home plans
The main supplementary expense in relation to house plans you should budget for is any customization to the heap plans you may want. subsequent to again, you should get a green vivacious and certain cost estimates from every full of zip parties before you purchase your plans. That artifice you won’t exactly acquire free home plans, but at least you will spend as tiny as realistic upon your plans.
Here you are at our website, content above published by plougonver.com. At this time we’re excited to announce that we have discovered an extremely interesting topic to be discussed. namely, Basic Home Plans. Most people attempting to find info about Basic Home Plans and certainly one of them is you, is not it?




















