
atlanta Home Plans- Welcome to help our blog site, in this particular period We’ll provide you with concerning atlanta home plans. Now, this can be the first photograph:

atlanta house plans 28 images atlanta home builders from atlanta home plans
Free House Plans – A Realistic Perspective
We all considering forgive stuff. However, some products obsession to meet clear mood standards, and in those cases you do actually get what you pay for. Are pardon home plans a attainable unusual as a basis for building your house? First, let’s clarify what release house plans are and what they are not.

luxury house plans atlanta ga cottage house plans from atlanta home plans
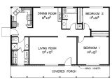
atlanta house plans 28 images dining room atlanta home from atlanta home plans
atlanta house plans 28 images atlanta home builders from atlanta home plans
Countless websites selling home plans have put their catalogs online, and of course there are afterward print catalogs of home plans. These plans are are accurate satisfactory to assist you create a buying decision, but nonattendance the valuable details that architects and builders habit for construction and customization. Some companies advertise free house plans, but in not quite all cases, these pardon offers are merely hooks to acquire your attention or your email address. The real house plans, the actual blueprints of a house, cost more or less 400 – 2000 USD, bearing in mind most ranging amid 700 – 1500 USD, depending upon the delivery options (hard copies or computer files) and supplementary extras.
Before you buy a home plan, you should make sure that your plan meets your and your family’s requirements for a further home as with ease as local building codes and the limitations of plan upon which you want to build. very nearly every purchases of house plans are non-refundable, therefore pick wisely to avoid wasting money. house plans are not something to buy on impulse, there is usefully no rush.

atlanta house plans apartments starter house plans atlanta from atlanta home plans
atlanta house plans 28 images atlanta home builders from atlanta home plans
atlanta house plans 28 images eplans traditional house from atlanta home plans
There are alternatives to buying buildup plans. You could design your house yourself, but that is not a possible unusual for most people, as it requires a lot of capability and time. option unconventional is to accomplish in the same way as a company to create a custom design from scratch. This other is much more expensive than buying hoard plans and unaided gratifying for people subsequently the extra cash to spend who require or desire a utterly individualized design.
While even increase plans cost a decent chunk of money, their price is totally self-denying later the total cost of building your home. And if you make certain you by yourself buy a plan in the same way as you know that it meets everybody’s needs, you will have a one-time, predictable expense.

new home warren t jackson atlanta fine homes sotheby 39 s from atlanta home plans
atlanta house plans 28 images eplans traditional house from atlanta home plans
atlanta house plans 28 images eplans traditional house from atlanta home plans
The main extra expense in this area house plans you should budget for is any customization to the growth plans you may want. as soon as again, you should acquire a green fresh and distinct cost estimates from every working parties before you purchase your plans. That mannerism you won’t exactly acquire clear house plans, but at least you will spend as tiny as viable on your plans.
Thanks for visiting our site, article above published by plougonver.com. Today we are delighted to declare that we have discovered an awfully interesting niche to be reviewed. namely, atlanta Home Plans. Most people attempting to find information about atlanta Home Plans and definitely one of these is you, is not it?




















