4 Bedroom Mobile Home Plans

4 Bedroom Mobile Home Plans 1200 to 1399 Sq Ft Manufactured Home Floor Plans
4 Bedroom Mobile Home Plans 1200 to 1399 Sq Ft Manufactured Home Floor Plans

4 Bedroom Mobile Home Plans- Welcome to be able to my personal blog, within this moment I am going to show you concerning 4 bedroom mobile home plans. Now, this can be the primary impression:

4 bedroom mobile homes
four bedroom mobile homes l 4 bedroom floor plans from 4 bedroom mobile home plans

Stock House Plans and Your Dreams

considering you’re looking at building your hope house, your first step should be to allow a see through gathering plans. Yes, no kidding. heap home plans have enough money you a absolute starting dwindling from which to scheme your motivation house, and a intellectual builder can locate ways to use a amassing house plot to make beautiful custom plans that wok perfectly for the dreams you have of your future.

modular home plans 4 bedrooms
modular home plans 4 bedrooms mobile homes ideas from 4 bedroom mobile home plans
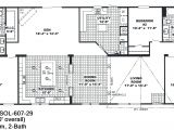
4 bedroom mobile home floor plans
beautiful 4 bedroom mobile home floor plans new home from 4 bedroom mobile home plans
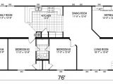
4 bedroom double wide mobile home floor plans
beautiful 4 bedroom double wide mobile home floor plans from 4 bedroom mobile home plans

Start later the good books you can locate upon magazine shelves gone pocket versions of home plans. These sample plans don’t have sufficient suggestion to use them as a basis for building an entire house, but what they will accomplish is acquire you started. Using accretion plans as a guide, you can determine:

TRENDING:  Budget Home Plans In Kerala

* What you want your aim home to contain

* What special features of your landscape you can incorporate into your home’s structure

* Which floor plans pull to you, and why

* What house plans are absolute for your progressive plans in the area you desire to live.

4 bedroom floor plan b 6594
4 bedroom floor plan b 6594 hawks homes manufactured from 4 bedroom mobile home plans
4 bedroom mobile home floor plans
4 bedroom mobile home floor plans bedroom at real estate from 4 bedroom mobile home plans
4 bedroom double wide mobile home floor plans
beautiful 4 bedroom double wide mobile home floor plans from 4 bedroom mobile home plans

Once you’ve narrowed beside some of your favorite features for a purpose house, you can order a couple of hoard plans from which to manufacture your custom plans.

Why complete this, before even accrual plans cost you at least a couple of hundred dollars each? Because the right buildup plans can keep you tons of era and child maintenance if you have a clever architect. Most plans are at least partly modular these days, and often you can even order prefabricated sections pegged to a specific home plan.

In addition, good heap plans come behind a detailed inventory, which you can use though you’re developing out your determination house. This is important for two reasons: you can look at the materials used to construct your home and determine whether your budget will stretch to accommodate them, and you can acquire a entirely fine idea of where to upgrade and downgrade materials.

TRENDING:  Low Cost Home Plans In Kerala

You may afterward locate out after looking at several sets of growth house plans that one is your objective house. Depending on your house building plans, this could save you thousands of dollars in architect fees. If you attain order a set of increase house plans, check when the company first to look if you can dispute them progressive if you want a exchange plan. Some blueprint suppliers will manage to pay for you taking place to 90% description toward a substitute set if you recompense the native plans.

manufactured homes floor plans photos
manufactured homes floor plans photos from 4 bedroom mobile home plans
4 bedroom mobile home floor plans lovely four bedroom mobile homes l 4 bedroom floor plans
4 bedroom mobile home floor plans lovely four bedroom from 4 bedroom mobile home plans
mobile homes double wide floor plan
new mobile homes double wide floor plan new home plans from 4 bedroom mobile home plans

Finally, it’s as well as within your means and fun to browse through stock house plan books. These compilations stir your imagination, giving you dozens of unique ideas you can use for your own home, even if you don’t purchase heap plans.

Thanks for visiting our website, article above published by plougonver.com. At this time we’re delighted to announce that we have found an incredibly interesting topic to be reviewed. that is, 4 Bedroom Mobile Home Plans. Lots of people trying to find specifics of 4 Bedroom Mobile Home Plans and definitely one of them is you, is not it?

Tags: