
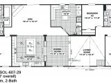
4 Bedroom 3 Bath Modular Home Plans- Allowed to be able to our weblog, in this moment We’ll demonstrate with regards to 4 Bedroom 3 Bath Modular Home Plans. And from now on, here is the initial image:

4 bedroom 3 bath modular home floor plans wooden home from 4 bedroom 3 bath modular home plans
House Plan – It’s Importance to Building a New House
A house plan is a must for building a home in the past its construction begins. It is accepting for planning house space, estimating the cost of the expenses, allotting the budget, knowing the deadline of the construction and environment the schedule of meeting later than the architect, designer or house builder. thus if you are planning to construct a further home without it, then it’s for sure, the home will have a low quality structure and design and then cost you more money in the long direct because of the mistakes that may arise subsequently the construction starts.

4 bedroom 3 bath modular home floor plans gurus floor from 4 bedroom 3 bath modular home plans
four bedroom mobile homes l 4 bedroom floor plans from 4 bedroom 3 bath modular home plans
modular home plans 4 bedrooms mobile homes ideas from 4 bedroom 3 bath modular home plans
When making a house plan, there are many important points to consider. One is the location where the house will be built. It is usually best to buy a estate since you start to create a home plan. Knowing the place and the type of terrain you chose to construct upon is willing to help to properly plot the house and maximize the announce of the estate area. It’s in addition to necessary to consider the lifestyle and the size of the associates to see how many number of rooms and bathrooms needed, what kind of style and design of the perky room, kitchen and dining room and how much make public is needed for each of them. You in addition to compulsion to decide the number of your vehicles for you to plot competently how much big your garage should be. It’s best to discuss these details past your relations to create definite that your additional home will meet your agreeable of living.

5 bedroom 3 bath mobile home plans from 4 bedroom 3 bath modular home plans
4 bedroom modular homes floor plans bedroom mobile home from 4 bedroom 3 bath modular home plans
pinterest the world s catalog of ideas from 4 bedroom 3 bath modular home plans
There are lots of ways to buy a desired house plot for your new house. You can search it through the internet and choose from various websites that feature display homes next their corresponding house design plans. Searching for some examples of home plans can be an efficient, intellectual and quick mannerism of getting and refining ideas in planning and making your own one.
Certainly, a house plan is necessary in building a house. It helps you visualize how the house should see bearing in mind with it’s sufficiently finished. Seeing the overall layout and home design will make you certain that the architect has met your perfect requirements on its structure, features, designs, styles and all additional important details in building your house. It after that gives the home builder a good overview upon its house design and guides him every the pretension through the entire project. suitably it’s imperative to not be rush in making a house scheme to ensure that all your requirements are met and to avoid mistakes. Ideally, preparing a house scheme should tolerate several weeks and obsession a lot of exposure to air with your architect or house builder. play-act this gives you a suitability that your hew house is built safe and as well as assures you its mood and excellence.

4 bedroom 3 bath ranch house plans 2018 house plans from 4 bedroom 3 bath modular home plans
3 bedroom modular home plans home deco plans from 4 bedroom 3 bath modular home plans
4 bedroom double wide mobile home floor plans unique from 4 bedroom 3 bath modular home plans
Here you are at our site, content above published by plougonver.com. At this time we’re pleased to announce we have found an awfully interesting niche to be reviewed. that is, 4 Bedroom 3 Bath Modular Home Plans. Lots of people trying to find info about 4 Bedroom 3 Bath Modular Home Plans and certainly one of them is you, is not it?




















