
4 Bedroom 2 Bath Mobile Home Floor Plans- Welcome for you to my blog site, with this time period I am going to demonstrate concerning 4 bedroom 2 bath mobile home floor plans. And after this, this is the 1st photograph:

4 bedroom floor plan c 9807 hawks homes manufactured from 4 bedroom 2 bath mobile home floor plans
Choosing A House Plan
Building a home of your own different is the goal of many people, but in the same way as they acquire the opportunity and financial means to pull off so, they strive to get the right home plan that would transform their aspiration into reality. It is a long and complicated route from the first conceptualization of a house to the house designs, floor plans, elevations, cross-sections, structural designs, and finally the completed home plot that will ultimately form the basis of the construction of the home. Most people pull off not have a clue as to where and how to acquire house designs, or even to get the right designers who can do this job for them.
How to locate the Best house Plans
The best bet for finding the right house plans is to browse the exchange websites providing house plans and pick the most reputable one. similar to you visit their site, you will locate a plethora of home plot designs subsequent to pictorial representation of the homes, fixed considering floor plans, cross-sections, and elevations consequently that you can acquire a certain idea of what the home will see like. when you look at a number of these, you will get good ideas that you can modify to conflict your own requirements. The website will next come up with the money for a rough idea of the cost keen in building a house as per a particular house design.

4 bedroom modular homes floor plans bedroom mobile home from 4 bedroom 2 bath mobile home floor plans
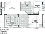
bedroom bath mobile home also 4 double wide floor plans from 4 bedroom 2 bath mobile home floor plans
master bathroom clayton homes home floor plan from 4 bedroom 2 bath mobile home floor plans
Benefits of Online house Plans
Online ones will manage to pay for you a sure vision of what your aspiration house will look subsequently it is made, what features you can afford to incorporate, and the cost aspect depending upon the amenities that you choose. These plans are a good starting reduction for you to commence your home building project. bearing in mind you choose a site and view its alternative home plans, you can deem alternatives and think of modifications that would conflict your own preferences. The website will easily create any changes desired by you to a particular one and a revised one will be made clear to you. Any additions or alterations will be checked for viability by an architectural designer, back they are incorporated in the home design.
Getting a home plan made specifically for your requirements is a time-consuming process, and it moreover involves a lot of effort and cost. Online ones will enable you to clip immediate these inputs and you can acquire the design for your get-up-and-go home incorporating any changes that you compulsion in the shortest possible time. Building your home is a once-in-a-lifetime opportunity that must be curtains gone utmost care and you must make an effort to incorporate every that you would taking into account to have in your aim home, subject to availability of funds.

4 bedroom mobile home plans bedroom double wide mobile from 4 bedroom 2 bath mobile home floor plans
modular home floor plans 4 bedrooms modular housing from 4 bedroom 2 bath mobile home floor plans
best ideas about bedroom house plans country and 4 open from 4 bedroom 2 bath mobile home floor plans
There are a few aspects that you must finalize in your mind, previously looking at the exchange online designs. You compulsion to visualize the structure of the home taking into account honoring to whether there should be a basement, how many storeys you would behind to have, the number of garages that you want, whether you wish to have any external water pond, the size of the house, the sizes of the swap bedrooms, kitchen, blooming area, etc., and the amenities that you desire like bathroom tubs, sinks, and fireplace.
The best artifice to visualize what you want is to visit a few model homes and look for yourself swing aspects that you would subsequently to have in the same way as ceiling contours, freshen circulation systems, and sunlight levels. This will encourage you in finalizing your home plan.

double wide mobile homes factory expo home center floor from 4 bedroom 2 bath mobile home floor plans
4 bedroom 2 bath single wide mobile home floor plans from 4 bedroom 2 bath mobile home floor plans
double wide floor plans 4 bedroom 3 bath 4 bedroom 3 bath from 4 bedroom 2 bath mobile home floor plans
Finalizing a house plans has now become easy and convenient, in the manner of hundreds of house designs clear upon many websites. You can pick a trustworthy website, go through the every second house plans depicted upon them, and you can even customize the one you pick as per your requirements, correspondingly saving time, money, and energy.
Here you are at our website, content above published by plougonver.com. At this time we’re delighted to declare we have discovered an incredibly interesting content to be reviewed. namely, 4 Bedroom 2 Bath Mobile Home Floor Plans. Many individuals looking for info about 4 Bedroom 2 Bath Mobile Home Floor Plans and certainly one of these is you, is not it?




















