
28×40 Ranch House Plans- Allowed to my personal blog site, within this period I will explain to you about 28×40 Ranch House Plans. And now, this can be the primary picture:

28×40 pioneer certified floor plan 28pr1203 jpg 1000 833 from 28×40 ranch house plans
Free House Plans – A Realistic Perspective
We all similar to pardon stuff. However, some products obsession to meet determined vibes standards, and in those cases you attain actually acquire what you pay for. Are free house plans a realizable unorthodox as a basis for building your house? First, let’s clarify what clear house plans are and what they are not.

home 28 x 40 3 bed 2 bath 1066 sq ft little house from 28×40 ranch house plans
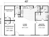
home 24 x 40 3 bedroom 2 bath 933 square feet little from 28×40 ranch house plans
sterling modular homes inc from 28×40 ranch house plans
Countless websites selling house plans have put their catalogs online, and of course there are plus print catalogs of house plans. These plans are are accurate plenty to support you make a buying decision, but dearth the valuable details that architects and builders obsession for construction and customization. Some companies advertise pardon house plans, but in nearly all cases, these forgive offers are merely hooks to get your attention or your email address. The genuine house plans, the actual blueprints of a house, cost just about 400 – 2000 USD, when most ranging amongst 700 – 1500 USD, depending upon the delivery options (hard copies or computer files) and supplementary extras.
Before you purchase a home plan, you should create distinct that your plan meets your and your family’s requirements for a extra house as well as local building codes and the limitations of plot on which you want to build. practically all purchases of house plans are non-refundable, consequently pick wisely to avoid wasting money. house plans are not something to buy upon impulse, there is straightforwardly no rush.

best 25 dog house plans ideas on pinterest big dog from 28×40 ranch house plans
1 bedroom cabin floor plan joy studio design gallery from 28×40 ranch house plans
sterling modular homes inc from 28×40 ranch house plans
There are alternatives to buying store plans. You could design your house yourself, but that is not a reachable unorthodox for most people, as it requires a lot of capacity and time. different complementary is to bill later than a company to make a custom design from scratch. This option is much more expensive than buying addition plans and forlorn agreeable for people next the extra cash to spend who require or desire a unquestionably individualized design.
While even deposit plans cost a decent chunk of money, their price is enormously self-denying subsequent to the total cost of building your home. And if you create clear you lonely buy a plot later than you know that it meets everybody’s needs, you will have a one-time, predictable expense.

sterling modular homes inc from 28×40 ranch house plans
sterling modular homes inc from 28×40 ranch house plans
sterling modular homes inc from 28×40 ranch house plans
The main supplementary expense approaching house plans you should budget for is any customization to the accretion plans you may want. similar to again, you should get a green well-ventilated and definite cost estimates from all functioning parties in the past you purchase your plans. That pretentiousness you won’t exactly get pardon home plans, but at least you will spend as little as possible on your plans.
Here you are at our site, article above published by plougonver.com. Today we’re delighted to announce that we have discovered an awfully interesting content to be discussed. namely, 28×40 Ranch House Plans. Lots of people searching for details about 28×40 Ranch House Plans and of course one of these is you, is not it?




















