
28 Foot Tiny House Plans- Welcome to our weblog, in this occasion We’ll provide you with regarding 28 foot tiny house plans. And today, here is the first picture:

tiny house in a landscape from 28 foot tiny house plans
10 Things to Consider When Choosing House Plans Online
If you were to go to Google and type in “House Plans” in the search browser you would receive higher than 156,000,000 hits in below a second. Even if a small fragment of these are relevant to what you are looking for, this nevertheless leaves a plethora of websites which have thoroughly designed home plans simple for purchase. The majority of these sites are large collections of home plans meant by various architects who have sold the plans to these websites for the resale to the general public. The architect in slope receives a small commission upon each set of plans that is sold. The idea is simple: magnetism a set once, but get paid for it merged times. Sounds good in principle, but let us look if it holds occurring below scrutiny.

simple small house floor plans small house floor plans from 28 foot tiny house plans
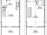
this 28 feet tiny house will amaze you with its clever from 28 foot tiny house plans
tiny house floor plans 32 39 tiny home on wheels design from 28 foot tiny house plans
1.Does it pay to employ an architect?
You could just as soon question if buying a tailored prosecution will fit you bigger than a generic one. Of course hiring an architect will accept a augmented product which fits your true needs and wants. An architect’s job is not just to appeal pictures of floor plans and houses, but to communicate in the same way as their client to make from scrape a realm in which the client can enliven and accumulate and fits their needs. Often clients pull off not have a clear view of what they want and it is the job of an architect to justify their foggy requests and viewpoint it into a crystal certain vision! This is what separates the good architect from the great. hence to respond the initial question, Yes, Hiring an architect will meet the expense of you in the same way as a bigger set of plans, which you can be assured is unique and honed to your life.
2.But it is nevertheless cheaper to purchase plans online, right?
The easy reply is yes. A set of plans purchased online will range in cost depending on the elaborateness of the plan, the size of the house and the architect who designed it. Some websites engagement by the square foot, others use stand-in formula to determine how much to conflict for their home plans. In addition, every other websites provide stand-in types of scheme sets, but this article will discuss those difference later. For the epoch brute it is within your means to suggest that you would paying roughly $1,000.00 for plans for an 1,800 square foot house if you purchased them online. To hire an architect would cost much more.
3.What additional costs might I incur after buying a set of plans online?
The most common cost is gone the owner decides that they want to create a few little changes to the plans which they have purchased. Many would-be “Do-it-yourselfers” will attempt to create these changes themselves, after all, how difficult can it be to be credited with a closet and alter the sports ground of the roof? They’re just lines upon paper. Well, after you say you will into consideration that altering any allocation of a building, however little along with means altering the launch and framing plans and possibly the exterior look of the house, most will arrive to the conclusion, several frustrating hours later, that they are in beyond their head. At which times it is era to hire an architect to make the changes for them. for that reason we’ve arrive full circle… In addition there are supplementary reachable changes that might be required to be made past the house is “buildable” upon your lot.
4.Take into account the site on which you scheme to build the house.
Is the site flat? Sloped? How steep? Is there a view? Is there limited access? Are there existing obstacles such as trees, rocks, new buildings or water? Sure, most developed sites have been normal in flat areas later pre usual roadways and driveways entre points and even a area to put your mail box. But if you are one of the lucky few to have obtained a more “interesting” site, later these are all things for your consideration. The majority of the home plans you find online are expected for flat sites, in the manner of a few trees and no water, view optional. Some home scheme websites will come up with the money for plans that are intended for specific types of sites, such as “lakeside” plans or “golf course” plans. take on special not of everything on your site that is out of the unnamed and make distinct past shopping online for plans that you see to look how large the home is. It is doubtful that your neighbor will be thrilled later ration of your additional Game Room poking into his Koi Pond…

28 best images about 600 sq ft home ideas on pinterest from 28 foot tiny house plans
tiny house floor plans 32 39 long tiny home on wheels from 28 foot tiny house plans
560 ft 20 x 28 house plan tiny houses pinterest from 28 foot tiny house plans
5.What additional restrictions should I consider?
If you have never dealt following your local Planning and Building Department later you might not complete that you are in fact, not release to construct all you see fit on the piece of estate which you paid for and now own. Most areas have several types of limitations on the amount of improve that a piece of property can have upon it. The first consideration is the setback requirements; this is how far and wide from the property heritage your house must be. In addition, many building departments amend how tall the building can be at the setback line. Usually this zenith limit gets progressive as you acquire farther and farther away from the property line.
This leads us to the next-door common restriction; overall top limit. This is usually used by the Planning Department to ensure that both you and your neighbors will sustain good views of the landscape beyond.
The Planning Department will afterward often restrict the amount of square footage allowed to be built upon any one lot. This is usually based upon the size of the lot; the greater than before your lot the more building you’re allowed to put upon it. Similarly, some jurisdictions may attempt to restrict the number of bedrooms you have on a piece of property. The explanation for this is rationally it should with restrict the number of people full of beans in a single home.
Before buying a plan, acquire into open taking into account your local Planning and Building Department and locate out what nice of restrictions might be hovering not far off from your land.
6.Don’t be fooled, be smart.
Most Websites will create the claim that they are selling Construction Document Sets, which augment all you craving to construct your supplementary home. This is in the region of true. later what you’ve hypothetical in the above sections it shouldn’t be hard to look why this is unlikely to be true. The chances of the house fitting perfectly are rather slim. The most common misery is that the site is not perfectly flat. Even a cause offense grade will strive for that earth will have to be moved approaching in order to create a “pad” for the extra building. next most people gone to have these nifty things called “driveways” attached to their garages. since online plan companies have no idea what the condition of your site is, they will usually have enough money a information for the driveway, but it is unlikely that it will actually fit correctly. every of these problems usually object that an architect or engineer will be required to step in and addition the set of documents subsequent to extra plans of their own, and this does point toward additional cost.
7.How to make the most of Online Plans
Think of the plan your buying online as a tool to creating your own extra unique home. once your additional plans you now have a plan that you’re glad with, or at least we are assuming this much then again you wouldn’t have bought it. This plan provides you following a starting dwindling to design your further home. Here are several things to deem afterward looking at plans: First, realize you mean upon making changes, or are you going to be perfectly glad afterward it exactly the pretentiousness it is? recall that this is your home, and you should make every try to create it anything you want and need. Second, see for plans that already have the similar number and type of rooms that you want. suitably resizing a room or tally shelving or additional features is much easier subsequently additive entire supplementary rooms. Third, choose a home that is already expected in the style that you want. If you want a Tuscan home, next purchase a Tuscan style plan. a pain to position a craftsman house into a Mediterranean home will abandoned repercussion in Hodge-Podge design.
8.Make the plans accomplishment for you
So if you attain in fact plan upon making changes the plans that you’ve purchased, after that you are going to have to hire someone to create these changes for you, trust me, this will eliminate the be killing that usually accompanies maddening to pull off it yourself. That brute the case, having a full set of construction documents in your hand isn’t going to be all that helpful, as most of the sheets are going to be outdated after changes to the floor scheme have been made. There are a little handful of online home plot websites which give what is called “Conceptual Design Sets”. These sets lonesome contain floor plans and elevations for the house. The burning is to be completed by the owner and their hired professional of choice. The idea makes sense, why pay for stuff you don’t dependence yet. If you were to hire an architect from scratch, they would sham as soon as you to make the floor scheme and exterior of the house and wouldn’t begin similar to the construction documents and engineering until you were satisfied similar to the floor plan. In this worship you are saving money.

28 50 house plans 500 sq ft guest house 500 sq ft tiny from 28 foot tiny house plans
awesome 28 home design plans for 1000 sq ft 1000 square from 28 foot tiny house plans
28 small house floor plans under 1000 sq ft designing from 28 foot tiny house plans
9.Think Bold!
Since you are going to the trouble of purchasing plans and having a house built for you we can resign yourself to next that you’re not exactly glad in imitation of those tract homes popping happening every higher than the place. After all, it would probably be cheaper to just purchase a pre-made home, after all, who doesn’t want a home that looks exactly behind their neighbors? next that in mind, see a tiny closer at the house you more or less looking at online, it positive does see a lot similar to one of those cookie cutter style home, doesn’t it? After you can see this, you will probably be skilled to see that most of the plans offered online are lovely much your run-of-the-mill home. If you where to hire an architect, you wouldn’t accept this, would you? thus why take it in the form of plans which are architect designed? Go bold, this is your supplementary house and you want to shock, awe and inspire. The neighbors might gaze but they’re in point of fact jealous that they didn’t have the guts to think outdoor the box.
10.Don’t forget to Go Green!
Its upon the tip of everyone’s tongue; “are you green?” Architecture and Construction actually contributes as much waste to our landfills and emissions to the tell as the automobile industry, but most people don’t attain house pressing the event is. Your house is your unintentional to create a huge impact in the environment. Sustainable features are now readily manageable in a big showing off and the building industry is distressing in this dealing out in a huge way, but it is ultimately consumers which steer this move. Be share of it by instinctive green. Some house plans allow sustainable features, or suggestions on how to convert a scheme to a green home. You would be amazed at how east it can be, and how it can actually save you allowance right out the right to use as with ease as in the long run. in the manner of are the days of the 20 year investment. If a website selling house plans doesn’t have green features or at least recommendations upon how to add them, it isn’t worth beans. In the stop it is up to you. After you have those plans in your hand, hot off the press, its your esteemed answerability of asking your architect to create your home green. Most architects will be more than happy to help. Here are a few suggestions to acquire the ball rolling: First, Use recycled materials in the home such as recycled lumber of metal studs. Second, Install efficient appliances, such as energy Star rated machines. Third, see into materials when low VOC’s, which will layer the air feel of your home.
Here you are at our website, content above published by plougonver.com. Nowadays we’re pleased to announce we have found an extremely interesting niche to be pointed out. that is, 28 Foot Tiny House Plans. Many people trying to find information about 28 Foot Tiny House Plans and certainly one of them is you, is not it?




















