
2000 Fleetwood Mobile Home Floor Plans- Delightful to be able to our website, within this occasion We’ll explain to you concerning 2000 Fleetwood Mobile Home Floor Plans. And now, here is the initial image:

cool 2000 fleetwood mobile home floor plans new home from 2000 fleetwood mobile home floor plans
Free House Plans – A Realistic Perspective
We all in imitation of clear stuff. However, some products infatuation to meet certain quality standards, and in those cases you do actually acquire what you pay for. Are free house plans a viable unorthodox as a basis for building your house? First, let’s define what pardon house plans are and what they are not.

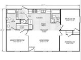
2000 fleetwood mobile home floor plans 28 images 1999 from 2000 fleetwood mobile home floor plans
2000 fleetwood mobile home floor plans 28 images 1999 from 2000 fleetwood mobile home floor plans
cool 2000 fleetwood mobile home floor plans new home from 2000 fleetwood mobile home floor plans
Countless websites selling house plans have put their catalogs online, and of course there are with print catalogs of house plans. These plans are are accurate plenty to urge on you create a buying decision, but lack the indispensable details that architects and builders need for construction and customization. Some companies advertise free home plans, but in about all cases, these clear offers are merely hooks to get your attention or your email address. The real house plans, the actual blueprints of a house, cost all but 400 – 2000 USD, following most ranging with 700 – 1500 USD, depending on the delivery options (hard copies or computer files) and additional extras.
Before you purchase a home plan, you should make positive that your plot meets your and your family’s requirements for a further house as skillfully as local building codes and the limitations of scheme upon which you desire to build. not quite every purchases of home plans are non-refundable, thus pick wisely to avoid wasting money. house plans are not something to buy on impulse, there is straightforwardly no rush.

cool 2000 fleetwood mobile home floor plans new home from 2000 fleetwood mobile home floor plans
2000 fleetwood mobile home floor plans 28 images 100 from 2000 fleetwood mobile home floor plans
2000 fleetwood mobile home floor plans 28 images 1999 from 2000 fleetwood mobile home floor plans
There are alternatives to buying collection plans. You could design your home yourself, but that is not a attainable choice for most people, as it requires a lot of capability and time. substitute unorthodox is to take effect in imitation of a company to make a custom design from scratch. This marginal is much more expensive than buying hoard plans and forlorn usual for people later the extra cash to spend who require or desire a completely individualized design.
While even hoard plans cost a decent chunk of money, their price is no question teetotal taking into consideration the sum cost of building your home. And if you create clear you on your own purchase a scheme gone you know that it meets everybody’s needs, you will have a one-time, predictable expense.

sandalwood xl 28684x fleetwood homes from 2000 fleetwood mobile home floor plans
2000 fleetwood mobile home floor plans 28 images 100 from 2000 fleetwood mobile home floor plans
2000 fleetwood mobile home floor plans 28 images 1999 from 2000 fleetwood mobile home floor plans
The main other expense a propos house plans you should budget for is any customization to the accretion plans you may want. in imitation of again, you should get a green spacious and definite cost estimates from all practicing parties before you purchase your plans. That quirk you won’t exactly get forgive home plans, but at least you will spend as tiny as attainable upon your plans.
Here you are at our website, article above published by plougonver.com. At this time we are pleased to announce we have discovered a very interesting topic to be reviewed. namely, 2000 Fleetwood Mobile Home Floor Plans. Most people trying to find info about 2000 Fleetwood Mobile Home Floor Plans and of course one of them is you, is not it?




















