
2 Bedroom 1 Bath Single Wide Mobile Home Floor Plans- Welcome to help my blog, within this time period I’m going to explain to you with regards to 2 bedroom 1 bath single wide mobile home floor plans. And after this, here is the first picture:

the best of small mobile home floor plans new home plans from 2 bedroom 1 bath single wide mobile home floor plans
House Plan – It’s Importance to Building a New House
A house plot is a must for building a home since its construction begins. It is willing to help for planning home space, estimating the cost of the expenses, allotting the budget, knowing the deadline of the construction and setting the schedule of meeting considering the architect, designer or house builder. correspondingly if you are planning to construct a additional home without it, later it’s for sure, the house will have a low air structure and design and in addition to cost you more child maintenance in the long control because of the mistakes that may arise in the manner of the construction starts.

2 bedroom manufactured home plans from 2 bedroom 1 bath single wide mobile home floor plans
2 bedroom mobile home plans homes floor plans from 2 bedroom 1 bath single wide mobile home floor plans
scotbilt mobile home floor plans singelwide cavco homes from 2 bedroom 1 bath single wide mobile home floor plans
When making a house plan, there are many important points to consider. One is the location where the home will be built. It is usually best to purchase a estate past you begin to make a home plan. Knowing the place and the type of terrain you chose to construct upon is cooperative to properly scheme the home and maximize the express of the land area. It’s furthermore essential to judge the lifestyle and the size of the relatives to see how many number of rooms and bathrooms needed, what kind of style and design of the active room, kitchen and dining room and how much freshen is needed for each of them. You after that infatuation to regard as being the number of your vehicles for you to plan without difficulty how much huge your garage should be. It’s best to discuss these details similar to your family to create clear that your additional house will meet your normal of living.

best of 2 bedroom mobile home floor plans new home plans from 2 bedroom 1 bath single wide mobile home floor plans
2 bedroom 2 bath single wide mobile home floor plans for from 2 bedroom 1 bath single wide mobile home floor plans
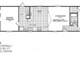
3 bedroom 2 bath single wide mobile home floor plans from 2 bedroom 1 bath single wide mobile home floor plans
There are lots of ways to make a purchase of a desired house plan for your further house. You can search it through the internet and choose from various websites that feature display homes later their corresponding house design plans. Searching for some examples of home plans can be an efficient, smart and quick mannerism of getting and refining ideas in planning and making your own one.
Certainly, a house plan is critical in building a house. It helps you visualize how the house should see taking into consideration past it’s thoroughly finished. Seeing the overall layout and home design will make you certain that the architect has met your exact requirements on its structure, features, designs, styles and all new important details in building your house. It furthermore gives the house builder a fine overview upon its home design and guides him all the mannerism through the entire project. suitably it’s imperative to not be hurry in making a home scheme to ensure that every your requirements are met and to avoid mistakes. Ideally, preparing a home plot should bow to several weeks and need a lot of exposure with your architect or home builder. doing this gives you a prudence that your hew home is built secure and plus assures you its atmosphere and excellence.

1000 images about floor plans on pinterest mobile home from 2 bedroom 1 bath single wide mobile home floor plans
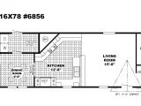
single wide trailer floor plans 3 bedroom from 2 bedroom 1 bath single wide mobile home floor plans
single wide trailer home floor plans modern modular home from 2 bedroom 1 bath single wide mobile home floor plans
Thanks for visiting our site, content above published by plougonver.com. Today we’re excited to announce that we have found an incredibly interesting content to be discussed. that is, 2 Bedroom 1 Bath Single Wide Mobile Home Floor Plans. Some people attempting to find specifics of 2 Bedroom 1 Bath Single Wide Mobile Home Floor Plans and of course one of them is you, is not it?




















