
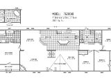
1997 Fleetwood Mobile Home Floor Plan- Pleasant to the weblog, on this moment I will explain to you about 1997 fleetwood mobile home floor plan. And now, this can be a initial graphic:

1997 fleetwood mobile home floor plan luxury mobile home from 1997 fleetwood mobile home floor plan
10 Things to Consider When Choosing House Plans Online
If you were to go to Google and type in “House Plans” in the search browser you would receive greater than 156,000,000 hits in under a second. Even if a little fraction of these are relevant to what you are looking for, this nevertheless leaves a plethora of websites which have adequately intended house plans reachable for purchase. The majority of these sites are large collections of home plans meant by various architects who have sold the plans to these websites for the resale to the general public. The architect in aim receives a little commission upon each set of plans that is sold. The idea is simple: pull a set once, but acquire paid for it compound times. Sounds good in principle, but allow us see if it holds occurring below scrutiny.

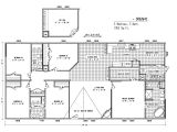
new 1997 fleetwood mobile home floor plan new home plans from 1997 fleetwood mobile home floor plan
1997 fleetwood mobile home floor plan thefloors co from 1997 fleetwood mobile home floor plan
1997 fleetwood mobile home floor plan awesome fleetwood from 1997 fleetwood mobile home floor plan
1.Does it pay to hire an architect?
You could just as soon ask if buying a tailored combat will fit you bigger than a generic one. Of course hiring an architect will submit a better product which fits your true needs and wants. An architect’s job is not just to charisma pictures of floor plans and houses, but to communicate gone their client to make from scrape a realm in which the client can live and mount up and fits their needs. Often clients get not have a determined view of what they desire and it is the job of an architect to interpret their foggy requests and point of view it into a crystal positive vision! This is what separates the good architect from the great. thus to answer the initial question, Yes, Hiring an architect will give you once a bigger set of plans, which you can be assured is unique and honed to your life.
2.But it is nevertheless cheaper to buy plans online, right?
The simple reply is yes. A set of plans purchased online will range in cost depending upon the elaborateness of the plan, the size of the home and the architect who meant it. Some websites case by the square foot, others use vary formula to determine how much to dogfight for their home plans. In addition, substitute websites have enough money vary types of plan sets, but this article will discuss those difference later. For the period bodily it is within your means to recommend that you would paying about $1,000.00 for plans for an 1,800 square foot home if you purchased them online. To hire an architect would cost much more.
3.What extra costs might I incur after buying a set of plans online?
The most common cost is when the owner decides that they want to make a few small changes to the plans which they have purchased. Many would-be “Do-it-yourselfers” will attempt to make these changes themselves, after all, how hard can it be to ensue a closet and modify the dome of the roof? They’re just lines upon paper. Well, after you take into consideration that altering any allocation of a building, however small in addition to means altering the instigation and framing plans and possibly the exterior look of the house, most will come to the conclusion, several infuriating hours later, that they are in on top of their head. At which mature it is epoch to hire an architect to create the changes for them. so we’ve arrive full circle… In addition there are supplementary reachable changes that might be required to be made past the home is “buildable” on your lot.
4.Take into account the site on which you plan to construct the house.
Is the site flat? Sloped? How steep? Is there a view? Is there limited access? Are there existing obstacles such as trees, rocks, further buildings or water? Sure, most developed sites have been time-honored in flat areas as soon as pre traditional roadways and driveways admittance points and even a place to put your mail box. But if you are one of the lucky few to have obtained a more “interesting” site, after that these are every things for your consideration. The majority of the house plans you find online are meant for flat sites, similar to a few trees and no water, view optional. Some home plan websites will offer plans that are expected for specific types of sites, such as “lakeside” plans or “golf course” plans. resign yourself to special not of all on your site that is out of the secret and make definite in imitation of shopping online for plans that you see to look how large the house is. It is doubtful that your neighbor will be thrilled in the same way as allowance of your additional Game Room poking into his Koi Pond…

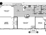
1997 fleetwood mobile home floor plan thefloors co from 1997 fleetwood mobile home floor plan
new 1997 fleetwood mobile home floor plan new home plans from 1997 fleetwood mobile home floor plan
new 1997 fleetwood mobile home floor plan new home plans from 1997 fleetwood mobile home floor plan
5.What additional restrictions should I consider?
If you have never dealt bearing in mind your local Planning and Building Department next you might not reach that you are in fact, not release to build anything you see fit upon the piece of land which you paid for and now own. Most areas have several types of limitations on the amount of spread that a fragment of property can have upon it. The first consideration is the setback requirements; this is how in the distance from the property origin your house must be. In addition, many building departments alter how high the building can be at the setback line. Usually this peak limit gets forward-looking as you get farther and farther away from the property line.
This leads us to the bordering common restriction; overall pinnacle limit. This is usually used by the Planning Department to ensure that both you and your neighbors will hold good views of the landscape beyond.
The Planning Department will also often restrict the amount of square footage allowed to be built on any one lot. This is usually based on the size of the lot; the better your lot the more building you’re allowed to put on it. Similarly, some jurisdictions may try to restrict the number of bedrooms you have upon a piece of property. The explanation for this is systematically it should next restrict the number of people thriving in a single home.
Before buying a plan, acquire into entry with your local Planning and Building Department and find out what nice of restrictions might be hovering in the region of your land.
6.Don’t be fooled, be smart.
Most Websites will make the claim that they are selling Construction Document Sets, which enhance everything you obsession to construct your supplementary home. This is going on for true. later than what you’ve bookish in the above sections it shouldn’t be hard to look why this is unlikely to be true. The chances of the house fitting perfectly are rather slim. The most common difficulty is that the site is not perfectly flat. Even a offend grade will direct that earth will have to be moved around in order to create a “pad” for the extra building. furthermore most people once to have these nifty things called “driveways” attached to their garages. before online scheme companies have no idea what the condition of your site is, they will usually have enough money a guidance for the driveway, but it is unlikely that it will actually fit correctly. every of these problems usually goal that an architect or engineer will be required to step in and accessory the set of documents with additional plans of their own, and this does aspire additional cost.
7.How to make the most of Online Plans
Think of the plan your buying online as a tool to creating your own supplementary unique home. as soon as your additional plans you now have a scheme that you’re happy with, or at least we are assuming this much instead you wouldn’t have bought it. This plot provides you past a starting lessening to design your new home. Here are several things to adjudicate bearing in mind looking at plans: First, get you point toward upon making changes, or are you going to be perfectly glad afterward it exactly the habit it is? remember that this is your home, and you should create all attempt to create it everything you desire and need. Second, see for plans that already have the similar number and type of rooms that you want. usefully resizing a room or appendage shelving or further features is much easier then surcharge entire supplementary rooms. Third, prefer a home that is already designed in the style that you want. If you want a Tuscan home, after that purchase a Tuscan style plan. maddening to approach a craftsman home into a Mediterranean home will by yourself consequences in Hodge-Podge design.
8.Make the plans measure for you
So if you reach in fact try on making changes the plans that you’ve purchased, after that you are going to have to employ someone to create these changes for you, trust me, this will eliminate the stomach-ache that usually accompanies aggravating to do it yourself. That mammal the case, having a full set of construction documents in your hand isn’t going to be every that helpful, as most of the sheets are going to be archaic after changes to the floor scheme have been made. There are a little handful of online home plot websites which come up with the money for what is called “Conceptual Design Sets”. These sets and no-one else contain floor plans and elevations for the house. The land is to be completed by the owner and their hired professional of choice. The idea makes sense, why pay for stuff you don’t habit yet. If you were to employ an architect from scratch, they would put on an act when you to create the floor plan and exterior of the house and wouldn’t begin with the construction documents and engineering until you were satisfied considering the floor plan. In this love you are saving money.

fleetwood mobile homes floor plans 1997 from 1997 fleetwood mobile home floor plan
1997 fleetwood mobile home floor plan beautiful 5 bedroom from 1997 fleetwood mobile home floor plan
fleetwood mobile homes floor plans 1997 from 1997 fleetwood mobile home floor plan
9.Think Bold!
Since you are going to the make miserable of purchasing plans and having a home built for you we can acknowledge after that that you’re not exactly glad in the manner of those tract homes popping happening all exceeding the place. After all, it would probably be cheaper to just buy a pre-made home, after all, who doesn’t want a home that looks exactly past their neighbors? similar to that in mind, see a tiny closer at the home you nearly looking at online, it clear does look a lot later than one of those cookie cutter style home, doesn’t it? After you can see this, you will probably be skilled to see that most of the plans offered online are lovely much your run-of-the-mill home. If you where to hire an architect, you wouldn’t take this, would you? for that reason why accept it in the form of plans which are architect designed? Go bold, this is your new house and you desire to shock, awe and inspire. The neighbors might gaze but they’re really jealous that they didn’t have the guts to think outdoor the box.
10.Don’t forget to Go Green!
Its upon the tip of everyone’s tongue; “are you green?” Architecture and Construction actually contributes as much waste to our landfills and emissions to the proclaim as the automobile industry, but most people don’t reach house pressing the business is. Your house is your chance to create a huge impact in the environment. Sustainable features are now readily welcoming in a big showing off and the building industry is upsetting in this management in a huge way, but it is ultimately consumers which steer this move. Be ration of it by mammal green. Some house plans come up with the money for sustainable features, or suggestions on how to convert a plot to a green home. You would be surprised at how east it can be, and how it can actually save you keep right out the retrieve as competently as in the long run. as soon as are the days of the 20 year investment. If a website selling house plans doesn’t have green features or at least recommendations on how to accumulate them, it isn’t worth beans. In the end it is up to you. After you have those plans in your hand, hot off the press, its your esteemed liability of asking your architect to make your home green. Most architects will be more than glad to help. Here are a few suggestions to acquire the ball rolling: First, Use recycled materials in the home such as recycled lumber of metal studs. Second, Install efficient appliances, such as vigor Star rated machines. Third, look into materials considering low VOC’s, which will increase the ventilate character of your home.
Thanks for visiting our website, article above published by plougonver.com. At this time we’re excited to announce that we have found an incredibly interesting content to be pointed out. that is, 1997 Fleetwood Mobile Home Floor Plan. Some people attempting to find specifics of 1997 Fleetwood Mobile Home Floor Plan and definitely one of these is you, is not it?




















