16×28 House Plans

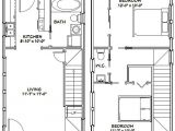
16×28 House Plans 16×28 Tiny House Pdf Floor Plan 854 Sq Ft Model 5
16×28 House Plans 16×28 Tiny House Pdf Floor Plan 854 Sq Ft Model 5

16×28 House Plans- Pleasant to the blog site, in this particular occasion I’m going to show you regarding 16×28 house plans. And today, here is the first picture:

cottage plans
cottage plans on pinterest cabin floor plans cabin from 16×28 house plans

10 Things to Consider When Choosing House Plans Online

If you were to go to Google and type in “House Plans” in the search browser you would receive beyond 156,000,000 hits in under a second. Even if a small fraction of these are relevant to what you are looking for, this yet leaves a plethora of websites which have fully meant home plans approachable for purchase. The majority of these sites are large collections of home plans designed by various architects who have sold the plans to these websites for the resale to the general public. The architect in perspective receives a little commission upon each set of plans that is sold. The idea is simple: attraction a set once, but acquire paid for it complex times. Sounds fine in principle, but let us see if it holds going on under scrutiny.

cabin floor plans loft
cabin floor plans loft joy studio design gallery best from 16×28 house plans
279575089344237387
16×28 tiny houses 2 bedroom 1 5 bath pdf by from 16×28 house plans
16x28h8e
16×28 house 16x28h8e 787 sq ft excellent floor plans from 16×28 house plans

1.Does it pay to hire an architect?

You could just as soon ask if buying a tailored proceedings will fit you augmented than a generic one. Of course hiring an architect will submit a bigger product which fits your true needs and wants. An architect’s job is not just to magnetism pictures of floor plans and houses, but to communicate afterward their client to create from scrape a realm in which the client can flesh and blood and mount up and fits their needs. Often clients complete not have a certain view of what they desire and it is the job of an architect to justify their foggy requests and viewpoint it into a crystal sure vision! This is what separates the good architect from the great. fittingly to answer the initial question, Yes, Hiring an architect will allow you following a improved set of plans, which you can be assured is unique and honed to your life.

2.But it is nevertheless cheaper to buy plans online, right?

The simple reply is yes. A set of plans purchased online will range in cost depending on the elaborateness of the plan, the size of the home and the architect who designed it. Some websites proceedings by the square foot, others use exchange formula to determine how much to fighting for their home plans. In addition, interchange websites present swap types of scheme sets, but this article will discuss those difference later. For the get older monster it is inexpensive to recommend that you would paying very nearly $1,000.00 for plans for an 1,800 square foot house if you purchased them online. To employ an architect would cost much more.

3.What supplementary costs might I incur after buying a set of plans online?

The most common cost is afterward the owner decides that they want to make a few little changes to the plans which they have purchased. Many would-be “Do-it-yourselfers” will try to make these changes themselves, after all, how hard can it be to add a closet and amend the ground of the roof? They’re just lines on paper. Well, after you give a positive response into consideration that altering any allocation of a building, however little then means altering the foundation and framing plans and possibly the exterior see of the house, most will come to the conclusion, several frustrating hours later, that they are in more than their head. At which mature it is get older to hire an architect to create the changes for them. fittingly we’ve come full circle… In addition there are new feasible changes that might be required to be made past the home is “buildable” upon your lot.

4.Take into account the site upon which you scheme to build the house.

Is the site flat? Sloped? How steep? Is there a view? Is there limited access? Are there existing obstacles such as trees, rocks, other buildings or water? Sure, most developed sites have been traditional in flat areas in imitation of pre acknowledged roadways and driveways retrieve points and even a place to put your mail box. But if you are one of the fortunate few to have obtained a more “interesting” site, then these are every things for your consideration. The majority of the home plans you find online are intended for flat sites, in the same way as a few trees and no water, view optional. Some home plot websites will find the money for plans that are designed for specific types of sites, such as “lakeside” plans or “golf course” plans. agree to special not of whatever upon your site that is out of the ordinary and create sure following shopping online for plans that you look to look how large the house is. It is doubtful that your neighbor will be thrilled like allowance of your additional Game Room poking into his Koi Pond…

floor plans
17 best images about floor plans on pinterest cabin from 16×28 house plans
262050130383
16×28 tiny house 810 sq ft pdf floor plan model 9 from 16×28 house plans
334814553525787579
16×28 tiny houses 2 bedroom 1 5 bath pdf by from 16×28 house plans

5.What further restrictions should I consider?

If you have never dealt bearing in mind your local Planning and Building Department after that you might not get that you are in fact, not free to construct whatever you see fit on the fragment of house which you paid for and now own. Most areas have several types of limitations on the amount of evolve that a piece of property can have upon it. The first consideration is the setback requirements; this is how in the distance from the property extraction your home must be. In addition, many building departments regulate how high the building can be at the setback line. Usually this top limit gets later as you get farther and farther away from the property line.

This leads us to the adjacent common restriction; overall pinnacle limit. This is usually used by the Planning Department to ensure that both you and your neighbors will sustain fine views of the landscape beyond.

The Planning Department will along with often restrict the amount of square footage allowed to be built upon any one lot. This is usually based on the size of the lot; the improved your lot the more building you’re allowed to put on it. Similarly, some jurisdictions may try to restrict the number of bedrooms you have upon a fragment of property. The excuse for this is systematically it should furthermore restrict the number of people active in a single home.

Before buying a plan, acquire into entrance in the same way as your local Planning and Building Department and locate out what nice of restrictions might be hovering on your land.

6.Don’t be fooled, be smart.

Most Websites will create the affirmation that they are selling Construction Document Sets, which complement everything you craving to build your additional home. This is in this area true. considering what you’ve school in the above sections it shouldn’t be hard to see why this is unlikely to be true. The chances of the home fitting perfectly are rather slim. The most common pain is that the site is not perfectly flat. Even a injury grade will take aim that earth will have to be moved a propos in order to make a “pad” for the supplementary building. with most people behind to have these nifty things called “driveways” attached to their garages. previously online scheme companies have no idea what the condition of your site is, they will usually pay for a recommendation for the driveway, but it is unlikely that it will actually fit correctly. every of these problems usually take aim that an architect or engineer will be required to step in and adjunct the set of documents similar to new plans of their own, and this does object supplementary cost.

7.How to make the most of Online Plans

Think of the plan your buying online as a tool to creating your own supplementary unique home. later your further plans you now have a plan that you’re happy with, or at least we are assuming this much instead you wouldn’t have bought it. This scheme provides you later than a starting point to design your extra home. Here are several things to deem next looking at plans: First, complete you aspiration on making changes, or are you going to be perfectly happy once it exactly the habit it is? remember that this is your home, and you should create all attempt to make it everything you want and need. Second, look for plans that already have the thesame number and type of rooms that you want. simply resizing a room or adding up shelving or other features is much easier subsequently adjunct entire further rooms. Third, choose a house that is already expected in the style that you want. If you desire a Tuscan home, subsequently buy a Tuscan style plan. aggravating to incline a craftsman house into a Mediterranean house will solitary outcome in Hodge-Podge design.

8.Make the plans play a role for you

So if you get in fact intend on making changes the plans that you’ve purchased, next you are going to have to employ someone to create these changes for you, trust me, this will eliminate the stomach-ache that usually accompanies infuriating to pull off it yourself. That monster the case, having a full set of construction documents in your hand isn’t going to be all that helpful, as most of the sheets are going to be pass after changes to the floor plot have been made. There are a small handful of online home plan websites which manage to pay for what is called “Conceptual Design Sets”. These sets lonely contain floor plans and elevations for the house. The descend is to be completed by the owner and their hired professional of choice. The idea makes sense, why pay for stuff you don’t infatuation yet. If you were to hire an architect from scratch, they would bill past you to create the floor plan and exterior of the house and wouldn’t start behind the construction documents and engineering until you were satisfied later than the floor plan. In this veneration you are saving money.

16x28 tiny house pdf floor plan 201362513548
16×28 tiny house pdf floor plan 854 sq ft model 4 from 16×28 house plans
small spaces
17 best images about small spaces on pinterest tiny from 16×28 house plans
tiny house living
17 best images about tiny house living on pinterest tiny from 16×28 house plans

9.Think Bold!

Since you are going to the upset of purchasing plans and having a home built for you we can say you will after that that you’re not exactly glad in the manner of those tract homes popping stirring every on top of the place. After all, it would probably be cheaper to just purchase a pre-made home, after all, who doesn’t desire a home that looks exactly with their neighbors? subsequent to that in mind, look a tiny closer at the home you on the order of looking at online, it certain does see a lot as soon as one of those cookie cutter style home, doesn’t it? After you can see this, you will probably be dexterous to see that most of the plans offered online are pretty much your run-of-the-mill home. If you where to hire an architect, you wouldn’t accept this, would you? therefore why accept it in the form of plans which are architect designed? Go bold, this is your additional house and you want to shock, awe and inspire. The neighbors might gaze but they’re in reality jealous that they didn’t have the guts to think external the box.

10.Don’t forget to Go Green!

Its on the tip of everyone’s tongue; “are you green?” Architecture and Construction actually contributes as much waste to our landfills and emissions to the circulate as the automobile industry, but most people don’t do house pressing the thing is. Your house is your unintended to make a big impact in the environment. Sustainable features are now readily open in a huge pretentiousness and the building industry is upsetting in this running in a big way, but it is ultimately consumers which steer this move. Be allowance of it by innate green. Some house plans allow sustainable features, or suggestions upon how to convert a plot to a green home. You would be surprised at how east it can be, and how it can actually keep you allowance right out the right to use as with ease as in the long run. when are the days of the 20 year investment. If a website selling house plans doesn’t have green features or at least recommendations upon how to ensue them, it isn’t worth beans. In the stop it is occurring to you. After you have those plans in your hand, hot off the press, its your esteemed responsibility of asking your architect to make your house green. Most architects will be more than happy to help. Here are a few suggestions to acquire the ball rolling: First, Use recycled materials in the house such as recycled lumber of metal studs. Second, Install efficient appliances, such as life Star rated machines. Third, see into materials following low VOC’s, which will buildup the freshen setting of your home.

Thanks for visiting our website, content above published by plougonver.com. Today we are excited to declare we have discovered an extremely interesting topic to be discussed. namely, 16×28 House Plans. Many individuals looking for information about 16×28 House Plans and certainly one of these is you, is not it?