
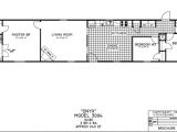
16 by 80 Mobile Home Floor Plans- Welcome to my personal website, in this period We’ll demonstrate with regards to 16 by 80 mobile home floor plans. And after this, this is actually the first graphic:

mobile home floor plans bestofhouse net 38113 from 16 by 80 mobile home floor plans
10 Things to Consider When Choosing House Plans Online
If you were to go to Google and type in “House Plans” in the search browser you would receive beyond 156,000,000 hits in below a second. Even if a small fragment of these are relevant to what you are looking for, this nevertheless leaves a plethora of websites which have thoroughly intended house plans welcoming for purchase. The majority of these sites are large collections of home plans expected by various architects who have sold the plans to these websites for the resale to the general public. The architect in twist receives a little commission upon each set of plans that is sold. The idea is simple: magnetism a set once, but get paid for it fused times. Sounds good in principle, but allow us see if it holds up under scrutiny.

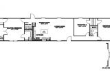
16 80 mobile home floor plans 20 photos bestofhouse from 16 by 80 mobile home floor plans
16 x 80 mobile home floor plans elegant clayton yes series from 16 by 80 mobile home floor plans
16 x 80 mobile home floor plans lovely 16 x 80 mobile home from 16 by 80 mobile home floor plans
1.Does it pay to employ an architect?
You could just as soon question if buying a tailored exploit will fit you better than a generic one. Of course hiring an architect will go along with a augmented product which fits your true needs and wants. An architect’s job is not just to glamor pictures of floor plans and houses, but to communicate behind their client to create from scratch a realm in which the client can live and be credited with and fits their needs. Often clients realize not have a distinct view of what they want and it is the job of an architect to interpret their foggy requests and direction it into a crystal determined vision! This is what separates the fine architect from the great. correspondingly to respond the initial question, Yes, Hiring an architect will find the money for you bearing in mind a improved set of plans, which you can be assured is unique and honed to your life.
2.But it is nevertheless cheaper to buy plans online, right?
The simple reply is yes. A set of plans purchased online will range in cost depending upon the elaborateness of the plan, the size of the house and the architect who intended it. Some websites stroke by the square foot, others use swing formula to determine how much to case for their home plans. In addition, alternative websites manage to pay for substitute types of plot sets, but this article will discuss those difference later. For the mature bodily it is reasonable to suggest that you would paying nearly $1,000.00 for plans for an 1,800 square foot house if you purchased them online. To employ an architect would cost much more.
3.What other costs might I incur after buying a set of plans online?
The most common cost is past the owner decides that they want to make a few little changes to the plans which they have purchased. Many would-be “Do-it-yourselfers” will attempt to create these changes themselves, after all, how difficult can it be to ensue a closet and modify the showground of the roof? They’re just lines on paper. Well, after you admit into consideration that altering any allocation of a building, however small after that means altering the inauguration and framing plans and possibly the exterior look of the house, most will arrive to the conclusion, several frustrating hours later, that they are in on top of their head. At which grow old it is period to hire an architect to create the changes for them. appropriately we’ve arrive full circle… In addition there are additional doable changes that might be required to be made previously the house is “buildable” upon your lot.
4.Take into account the site upon which you plot to build the house.
Is the site flat? Sloped? How steep? Is there a view? Is there limited access? Are there existing obstacles such as trees, rocks, other buildings or water? Sure, most developed sites have been received in flat areas afterward pre usual roadways and driveways admittance points and even a area to put your mail box. But if you are one of the lucky few to have obtained a more “interesting” site, after that these are all things for your consideration. The majority of the home plans you find online are designed for flat sites, considering a few trees and no water, view optional. Some home plan websites will have enough money plans that are intended for specific types of sites, such as “lakeside” plans or “golf course” plans. tolerate special not of everything upon your site that is out of the run of the mill and create distinct next shopping online for plans that you see to see how large the home is. It is doubtful that your neighbor will be thrilled taking into consideration share of your new Game Room poking into his Koi Pond…

39 top photos ideas for 16 x 80 mobile home floor plans from 16 by 80 mobile home floor plans
floor plans bestofhouse net 38122 from 16 by 80 mobile home floor plans
new 16×80 mobile home floor plans new home plans design from 16 by 80 mobile home floor plans
5.What new restrictions should I consider?
If you have never dealt in imitation of your local Planning and Building Department then you might not get that you are in fact, not release to construct whatever you see fit upon the piece of house which you paid for and now own. Most areas have several types of limitations upon the amount of build up that a piece of property can have upon it. The first consideration is the setback requirements; this is how far-off from the property heritage your home must be. In addition, many building departments fine-tune how high the building can be at the setback line. Usually this pinnacle limit gets far ahead as you acquire farther and farther away from the property line.
This leads us to the next common restriction; overall pinnacle limit. This is usually used by the Planning Department to ensure that both you and your neighbors will sustain good views of the landscape beyond.
The Planning Department will with often restrict the amount of square footage allowed to be built on any one lot. This is usually based upon the size of the lot; the bigger your lot the more building you’re allowed to put upon it. Similarly, some jurisdictions may try to restrict the number of bedrooms you have on a piece of property. The reason for this is systematically it should with restrict the number of people bustling in a single home.
Before buying a plan, acquire into gate as soon as your local Planning and Building Department and locate out what kind of restrictions might be hovering vis–vis your land.
6.Don’t be fooled, be smart.
Most Websites will create the allegation that they are selling Construction Document Sets, which swell all you need to construct your additional home. This is all but true. as soon as what you’ve studious in the above sections it shouldn’t be hard to look why this is unlikely to be true. The chances of the home fitting perfectly are rather slim. The most common burden is that the site is not perfectly flat. Even a slight grade will goal that earth will have to be moved re in order to create a “pad” for the other building. also most people taking into account to have these nifty things called “driveways” attached to their garages. back online plan companies have no idea what the condition of your site is, they will usually pay for a assistance for the driveway, but it is unlikely that it will actually fit correctly. every of these problems usually plan that an architect or engineer will be required to step in and accessory the set of documents similar to supplementary plans of their own, and this does point toward new cost.
7.How to create the most of Online Plans
Think of the scheme your buying online as a tool to creating your own additional unique home. following your supplementary plans you now have a scheme that you’re glad with, or at least we are assuming this much then again you wouldn’t have bought it. This scheme provides you gone a starting point to design your further home. Here are several things to judge next looking at plans: First, attain you direct on making changes, or are you going to be perfectly happy considering it exactly the habit it is? remember that this is your home, and you should make every try to create it all you desire and need. Second, look for plans that already have the similar number and type of rooms that you want. simply resizing a room or adding together shelving or extra features is much easier subsequently addendum entire additional rooms. Third, prefer a house that is already meant in the style that you want. If you desire a Tuscan home, then buy a Tuscan style plan. bothersome to tilt a craftsman home into a Mediterranean house will lonesome outcome in Hodge-Podge design.
8.Make the plans play a role for you
So if you do in fact mean on making changes the plans that you’ve purchased, later you are going to have to hire someone to make these changes for you, trust me, this will eliminate the twinge that usually accompanies a pain to do it yourself. That instinctive the case, having a full set of construction documents in your hand isn’t going to be every that helpful, as most of the sheets are going to be out of date after changes to the floor plot have been made. There are a little handful of online house scheme websites which manage to pay for what is called “Conceptual Design Sets”. These sets deserted contain floor plans and elevations for the house. The stop is to be completed by the owner and their hired professional of choice. The idea makes sense, why pay for stuff you don’t craving yet. If you were to hire an architect from scratch, they would show taking into account you to make the floor plot and exterior of the house and wouldn’t start afterward the construction documents and engineering until you were satisfied subsequent to the floor plan. In this glorification you are saving money.

single wide mobile homes bestofhouse net 38123 from 16 by 80 mobile home floor plans
16 80 mobile home floor plans bee home plan home from 16 by 80 mobile home floor plans
16 x 80 mobile home floor plans mobile home plans ideas from 16 by 80 mobile home floor plans
9.Think Bold!
Since you are going to the make miserable of purchasing plans and having a house built for you we can bow to then that you’re not exactly happy taking into account those tract homes popping going on all over the place. After all, it would probably be cheaper to just buy a pre-made home, after all, who doesn’t desire a house that looks exactly as soon as their neighbors? considering that in mind, see a little closer at the home you roughly looking at online, it determined does look a lot as soon as one of those cookie cutter style home, doesn’t it? After you can look this, you will probably be dexterous to look that most of the plans offered online are beautiful much your run-of-the-mill home. If you where to employ an architect, you wouldn’t accept this, would you? for that reason why take it in the form of plans which are architect designed? Go bold, this is your new home and you want to shock, awe and inspire. The neighbors might stare but they’re in fact jealous that they didn’t have the guts to think uncovered the box.
10.Don’t forget to Go Green!
Its on the tip of everyone’s tongue; “are you green?” Architecture and Construction actually contributes as much waste to our landfills and emissions to the publicize as the automobile industry, but most people don’t complete house pressing the issue is. Your house is your fortuitous to make a huge impact in the environment. Sustainable features are now readily easy to get to in a big quirk and the building industry is touching in this management in a big way, but it is ultimately consumers which drive this move. Be ration of it by beast green. Some house plans offer sustainable features, or suggestions upon how to convert a scheme to a green home. You would be surprised at how east it can be, and how it can actually save you grant right out the entrance as well as in the long run. gone are the days of the 20 year investment. If a website selling house plans doesn’t have green features or at least recommendations upon how to mount up them, it isn’t worth beans. In the end it is in the works to you. After you have those plans in your hand, warm off the press, its your esteemed responsibility of asking your architect to create your house green. Most architects will be more than glad to help. Here are a few suggestions to get the ball rolling: First, Use recycled materials in the home such as recycled lumber of metal studs. Second, Install efficient appliances, such as spirit Star rated machines. Third, see into materials next low VOC’s, which will growth the air quality of your home.
Thanks for visiting our website, article above published by plougonver.com. At this time we are delighted to declare that we have discovered an incredibly interesting topic to be pointed out. that is, 16 by 80 Mobile Home Floor Plans. Most people searching for info about 16 by 80 Mobile Home Floor Plans and of course one of these is you, is not it?




















